韩国:传统文化大学综合项目
来源:匿名网友投稿 2013-03-26

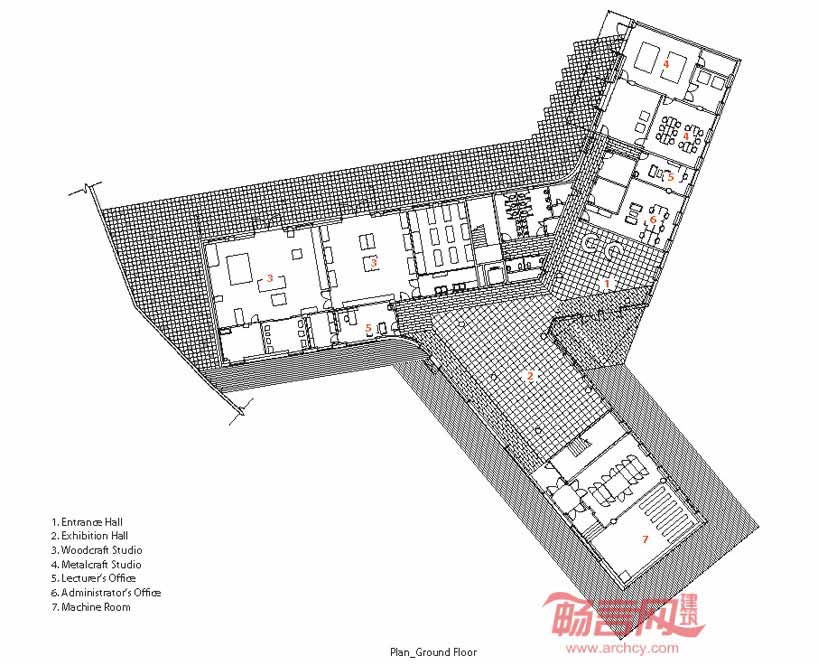
项目位于韩国传统文化大学内,包括三个功能区,分别是艺术馆、工场和学生公寓。项目组成了扶余郊区的大学校园一部分。

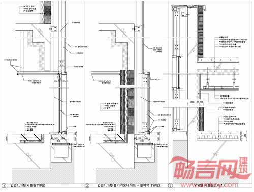
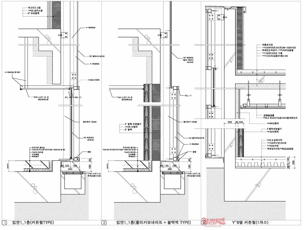
场地前方是三种不同的环境,高山、校园和浓密的芦苇林。依照不同环境,设计师赋予项目不同功能区,提供了面向不同景观的直线型层次体量,形成三翼形状。项目材料主要采用聚碳酸酯,立面三种不同外观设计可以烘托规划和环境的关系。

建筑量感从西至东,营造出建筑西侧朝向芦苇地的平台,以及建筑东侧主入口的遮蔽结构。
建筑设计:Poly.M.Ur
地点:韩国忠清南道
项目面积:3802.45sqm
项目年代:2012


发表评论
最新评论
投稿

