德国:弗莱堡Stadthaus M1住宅
来源:网友策展人投稿 2014-09-18
Stadthaus M1住宅项目位于德国弗莱堡Vauban区。这一区域是一个几乎没有汽车通行的绿色城市,提倡可持续居住和建筑模式。
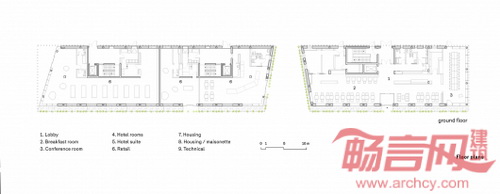
项目目的是设计涵盖酒店、商店的住宅单元。项目施工采用木材、混凝土材料,执行了被动式住宅设计标准。
最终设计方案赢得了设计竞赛奖项,包含一个独立酒店和住宅楼,通过连贯的屋顶景观和外立面得到了统一。酒店项目楼层较高,具有公共特性,位于Merzhauser大街的支路上。
较为私密的公寓楼位于酒店建筑后侧。酒店和住宅之间设有一个口袋公园,面向南方呈现开敞特点,提供建筑之间的通道,联通公共流通区域的过渡区,绿色植物外立面。
发表评论
最新评论
投稿