澳大利亚:HOUSE住宅
来源:匿名网友投稿 2013-04-02
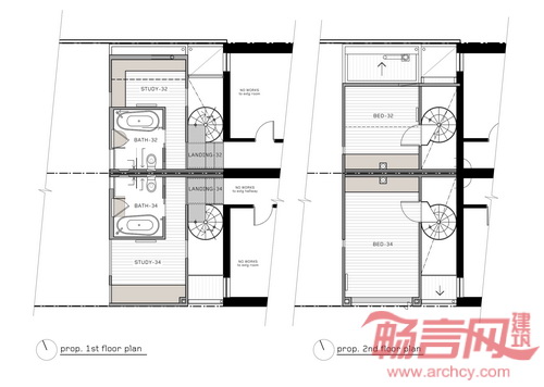
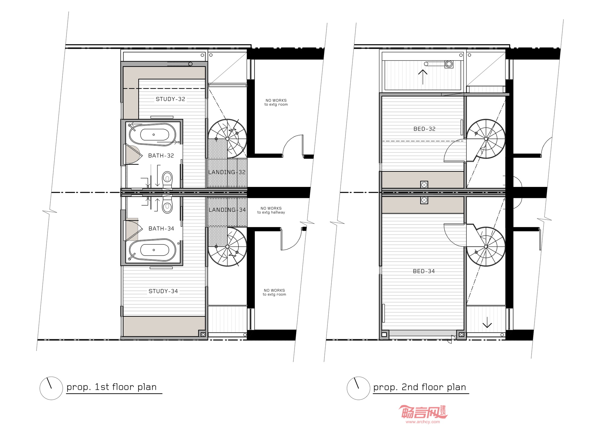
位于澳洲Richmond的一排相邻的排屋业主是一家两代人。两栋房屋都需要修缮和更新。HOUSE住宅是使两座建筑延伸的独栋房屋。新建建筑呈南北朝向,而原有建筑是东西朝向。两座建筑之间的栅栏得到了拆除,营造了更大的后院空间。
澳洲拥有时间上面积最为宽敞的家庭住宅,墨尔本是座“水平”城市,拥有很低的密度。因而,澳洲很少有受地形限制而形成较小占地面积的项目。这个特点使得这里不会出现世界其他地点上的小面积、大户外空间的范例项目。澳洲建筑都很宽敞而低矮,但却吞噬了户外面积。大面积的房屋通常对儿童玩耍照成了障碍,人们不得不去郊外享受开阔的户外空间。这种现象加深了人们对于汽车的依赖,使儿童远离丰富多彩的城市社区活动。
在HOUSE住宅项目中,设计师希望做到垂直型设计。设计师实现了三层空间,在较小的场地上使庭院做到了最大化。简言之,设计师别处寻常、澳洲罕见的设计。每个空间在个性和功能上各有千秋,因此空间有限的房屋能够适应用户的多种复杂情绪需求。
发表评论
最新评论
投稿