奥地利:Linz音乐中心
来源:网友棒棒糖投稿 2013-09-25
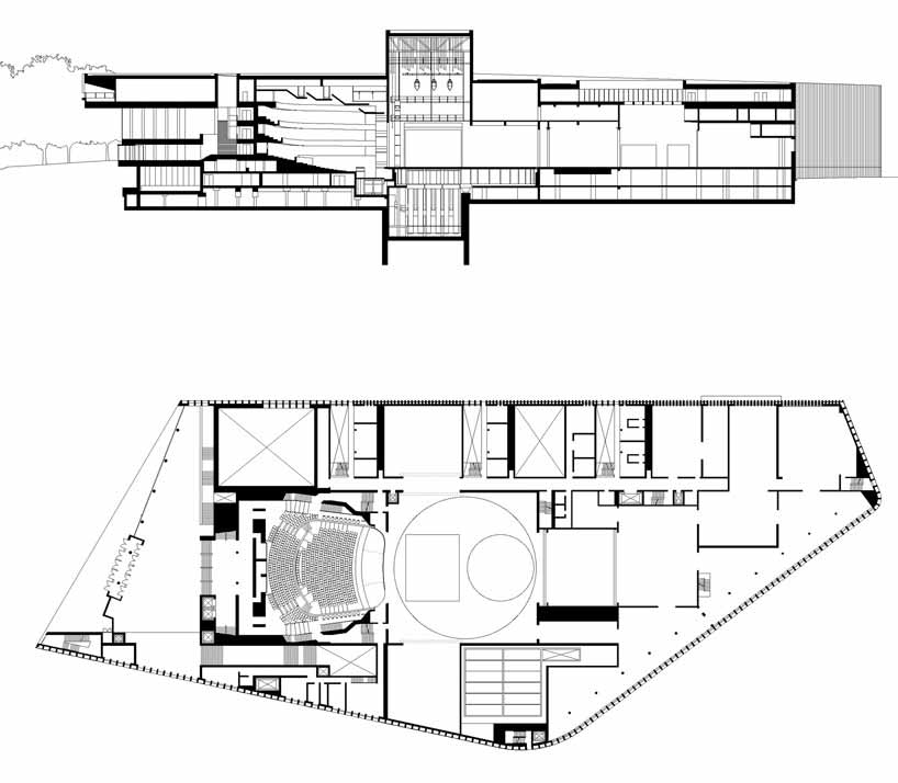
Terry Pawson建筑事务所设计的奥地利Linz音乐中心项目近日完工。建筑师Pawson在设计之初,意识到应当重新认识项目场地邻近景观的重要性,并努力开发其潜力。项目位于Land大街的南端,创建了除Haupt广场以外的又一城市中心焦点。礼堂和人民公园将成为与广场相对的重要场所,使充满活力的公共绿地同音乐中心大厅连接起来。项目方案决定将场地从铁道移至公园附近,不仅改变了城市格局,同时使法律所有权和土地使用法规发生了改变。为了达到这个目的,项目方与土地所有方和权威方面取得了良好的协调。最终,项目造就了新的城市街区,道路进行了重新规划和迁移。
发表评论
最新评论
投稿