葡萄牙:S. Roque House
来源:匿名网友投稿 2012-05-17
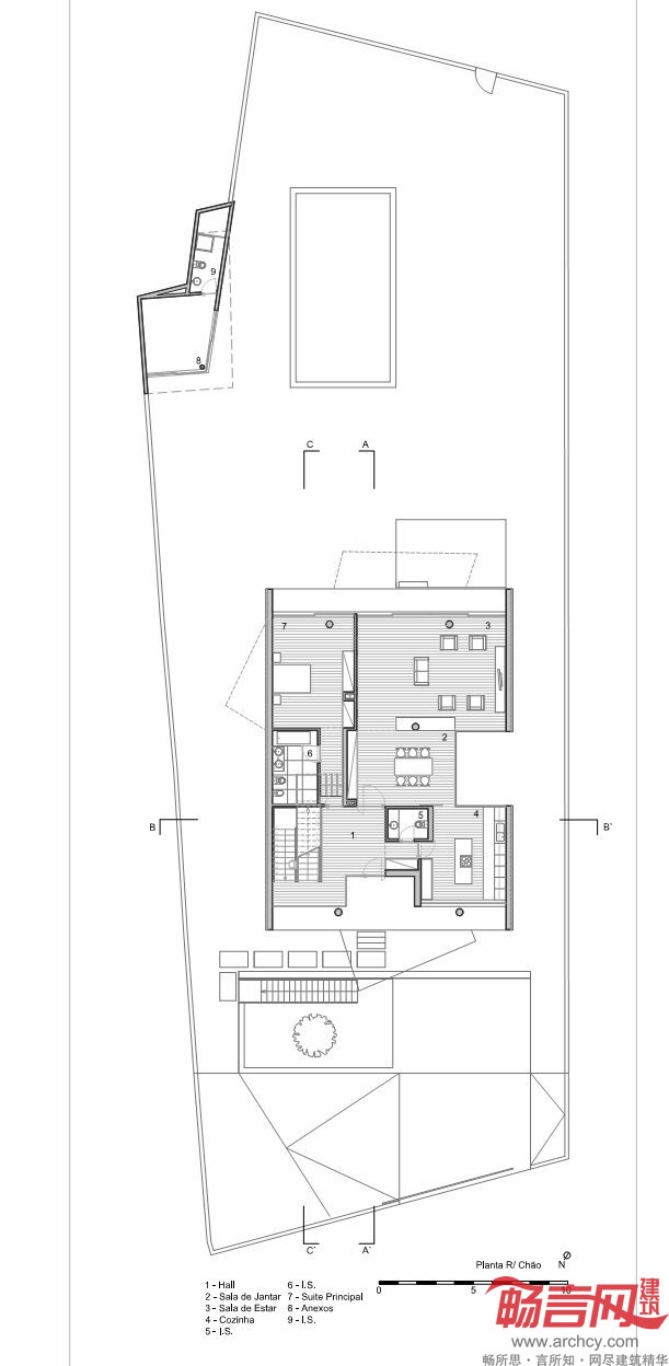
S. Roque House位于葡萄牙Oliveira de Azeméis市,其设计方案来自建筑设计公司Bruno Armando Gomes Marques。
房子坐落在两条马路之间,一条路在房子南边,另一条在北边。
房子建筑总面积为600平方米,由两个迥然不同的部分构成。下层的楼体形状更加规则一些,这里主要分布着一些公共功能区域,比如门厅、客厅、餐厅、厨房、卫生间和家庭办公室等;而楼上的部分则比较私密,主要为卧室和卫生间,每间卧室朝向都不一样,房子的2楼构成一个楔形,与1层形成鲜明对比。
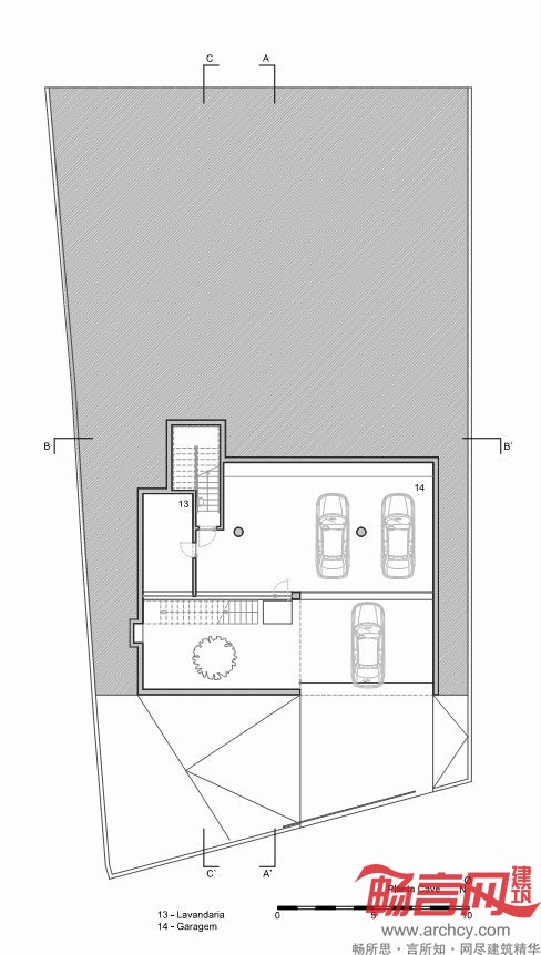
地下室主要分布着洗衣房、储物间和车库等。由于房子两边的马路高度不一样,从南面看,房子只是一个2层结构,而北面则多出了一层地下室,成为3层结构。
1楼公共空间的设计比较严肃,墙体使用了灰色调,与绿色草坪形成鲜明对比;而2楼空间设计则相对活泼一些,墙面被刷成白色,而且每间卧室仿佛是部分重叠在一起的。










发表评论
最新评论
投稿






