新加坡:花园房子
来源:网友IceFlake投稿 2012-05-07
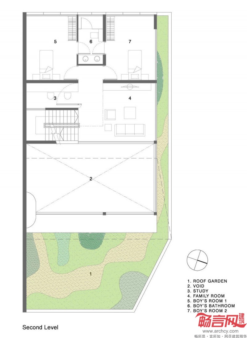
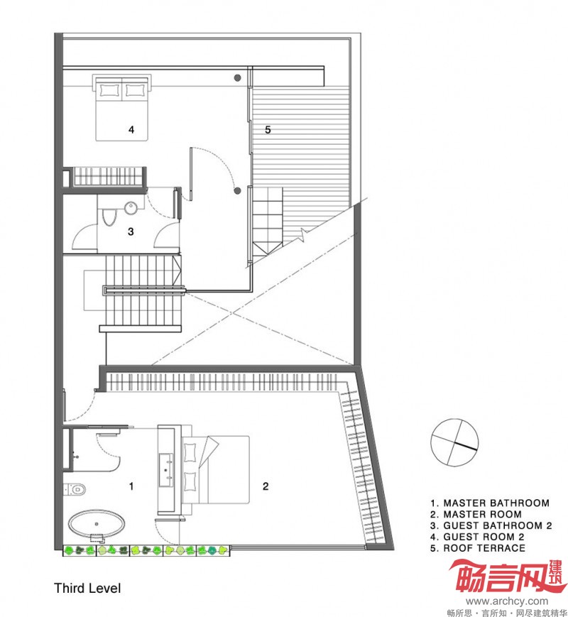
新加坡建筑设计公司Formwerkz Architects在当地设计了一座3层结构的花园房子,其建筑面积为3760平方英尺。
“业主希望我们将房子内部视野打开,以便他们在各个不同的区域都可以监护到2个孩子,”设计师介绍说:“同时我们也希望扩大房子的花园空间,尽管这座半独立式的房子占地面积比较狭小,而且绝大多数的地面都被建筑占据了。”
于是,设计师在房子正面围墙上用壁龛打造了一个垂直的绿植花园,同时也很好地利用了门廊的屋顶,在这里种植了灌木丛。
绿植窗帘
“我们在房子二楼的正面墙壁上安装了一个垂直的绿植园,其首要用途就是遮风挡雨,起到窗帘的作用。”设计师说。
这个绿植窗帘整体呈百叶窗结构,由多层量身定制的架子构成,这些架子上的盆栽可以取下来或用其他植物替换,非常便于养护。顶层架子上有一根水管,水顺着架子一层一层流下来,灌溉摆放在架子上的植物。
屋顶斜坡
由于屋顶是错层结构,设计师通过屋顶斜坡将这些区域联系起来,同时也增强了室内空间与屋顶的连续性。业主在屋顶上还可以做露天烧烤,铺有马赛克的平台就可以当作餐桌使用。
“我们很怀念爬上屋顶的感觉,”设计师说:“躺在倾斜的屋顶上,从同一个方向看着天空,我们惬意地交谈,享受生活中的每一刻。”

















发表评论
最新评论
投稿








