巴西:Casa HS乡村别墅
来源:匿名网友投稿 2012-09-05
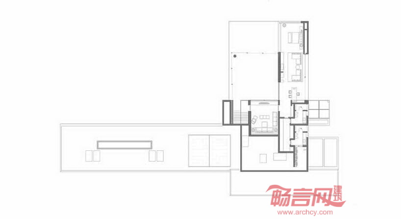
巴西Arthur Casas建筑设计工作室设计了一处离圣保罗市区1公里的乡村住宅。总面积达1000平米的项目分成两个建筑体,一个供孩子和宾客使用,另一个供主人夫妇使用。场地位于高尔夫球场上,拥有开敞的自然景观视野。两个建筑体间存在很大反差——儿童、客人楼运用了水平平铺方式,而主人楼则是立方体建筑。场地种植了高大的树木以及灌木丛,建筑长立面外竖立了钢丝网,用于遮挡街道方向的视线,维持室内的私密性。巨大的玻璃推拉门将走廊空间转变成一个与自然零距离的玻璃馆。其他层次的建筑坐落在石质基础上,并有台阶通往运动场。
为了使建筑不丧失家居特性,一层包含了起居室、餐厅、厨房,二楼有家庭剧场和主卧室。露台作为走廊和客房的界限,一直延伸到泳池边。可伸缩屋顶使得空气和阳光自由进入室内,同时配备垂直花园和水池。公共区有双倍层高的天花顶,将6米高的玻璃推拉门打开时,室内空间将和露台融为一体。此外地下层包含了健身房、桑拿浴室。
发表评论
最新评论
投稿