西班牙:巴塞罗那发电厂建筑
来源:网友记忆加温i投稿 2015-05-11
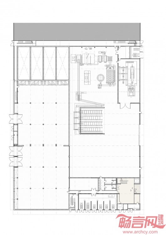
Forgas建筑事务所设计了巴塞罗那发电厂建筑。项目面积9435平米,涵盖工业、办公、向公众展示发电过程的空间。此外,项目以环保、可持续性设计拥有教育、培训和外延潜力。工业流程包括生物质能源回收、家庭和办公空调用冷水生产、解决食品生产所需的乙二醇溶液,太阳能光伏电厂。建筑设计要求在不影响工业生产前提下,为民众提供科普教学的展示功能。建筑布局分成纵向两列,东边一列包括生物质处理和行政办公、主入口、展示空间、多功能厅。西列包括蓄水池、锅炉房、冷却塔等设施。






本站申明:网友阅读本站内容,视为认同本站协议,协议详情请点击查看
标签:建筑设计巴塞罗那西班牙发电厂建筑
发表评论
最新评论
投稿