澳大利亚:Audrey公寓
来源:匿名网友投稿 2015-09-01
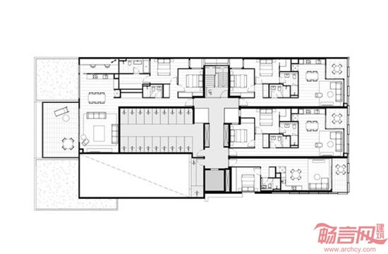
Audrey公寓位于澳洲里士满,于2015年建成。项目由Carr设计集团完成,是维多利亚街最新的增建项目。项目外立面颇为醒目,设计风格吸收了周边工业环境特点。设计方案提供了光影对比,隔绝了街道交通的负面影响,为住户提供所需的私密性和安全性。外立面安装了可开合的百叶窗,用户可自由控制遮阳设施的透光度。建筑室内外通过编制结构得到视觉统一性。






本站申明:网友阅读本站内容,视为认同本站协议,协议详情请点击查看
标签:公寓澳大利亚Audrey
发表评论
最新评论
投稿




