奥地利PANEUM面包博物馆 | 蓝天组
来源:网友Jaz53投稿 2022-11-29
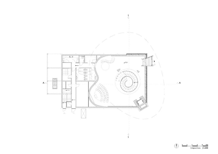
PANEUM客户信息中心和活动论坛位于奥地利林茨附近的阿斯滕。跨越9,000年的1,200件物品的综合展览,向所有有兴趣踏上面包世界之旅的人而开放。
PANEUM 包含两个建筑元素:门厅与活动空间所在的方盒子基座,和其上方具有流动形态的双层展示空间,也就是面包博物馆。建筑使用的材料使这两个部分的对比变得更加强烈:盒子的部分使用了现场浇筑的混凝土立面,而面包博物馆的圆形木结构则有着不锈钢材质的饰面。基座部分包含活动空间和与其相邻的空间,可用于汇报展示、招待会以及工作坊等各种各样的活动,最多可容纳120 名参观者。
.jpg)
.jpg)
.jpg)
.jpg)
.jpg)
.jpg)
.jpg)
.jpg)
.jpg)
.jpg)
.jpg)
.jpg)
.jpg)
.jpg)
.jpg)
.jpg)
.jpg)
发表评论
最新评论
投稿



