比利时:布鲁塞尔市郊的草墙房子
来源:网友南风未起投稿 2012-04-26
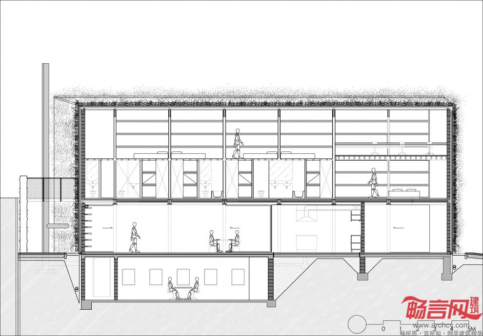
在比利时首都布鲁塞尔的市郊,有一座外墙面长满了青草的房子。这座房子是在原有的一座小平房基础上扩建而成的,原来的内部格局包括一个门厅、一间休息室和一间厨房,扩建之后的一楼新增了起居室和楼梯;房子的二楼包括主人卧室(内设浴室)、5个孩子的卧室和卫生间等等。
房子的三面外墙都是弧面形状,而且表面长满了青草和藤蔓,与周围的绿色环境显得非常协调;另一面外墙则全部是由玻璃装饰的,就像很多窗户组合在一起一样,给房子提供了很好的采光条件。
为了遮挡夏季炙热的阳光,玻璃墙后面还安装了半透明的白色尼龙窗帘,窗帘宽度为1.6米,从房顶一直垂落到地面。
扩建前,房子外墙也长满了绿植,只不过都是一些藤蔓,屋顶是铜质的,而且已经生了绿色的铜锈。扩建之后,园艺师Patrick Blanc为这栋房子精选了一些来自异国他乡的植物,还用这些植物覆盖了屋顶。
“我们需要设计房子的结构、为房子划分不同的区域、做好防水设计,还需要为房子设计好必要的支持系统,比如植物的灌溉和施肥设施等等,”设计师说:“这些植物是种植在布满小格子的PVC面板中的,这些小格子里面铺设了毛毡。”








发表评论
最新评论
投稿






