日本:浅草文化观光中心
来源:匿名网友投稿 2012-06-26
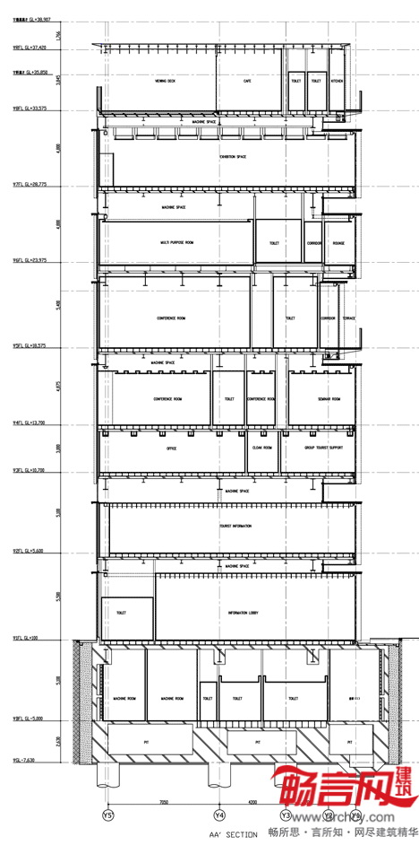
位于日本东京的浅草文化观光中心设计方是隈研吾建筑都市设计事务所。建筑外观看上去像一些带有坡屋顶的小型建筑堆叠而成。
观光中心坐落在金龙山浅草寺大门附近,古寺建于公元六世纪,在东京市同类寺庙中年代最久。
高楼八层分隔被分隔开来,形成了会议室和展览厅的坡屋顶。
木装饰条降低了四块玻璃板亮度,依照房屋内的隐秘性要求区别,对木条间隔作出了不同处理。
本站申明:网友阅读本站内容,视为认同本站协议,协议详情请点击查看
标签:
发表评论
最新评论
投稿