西班牙:La Panoleta托儿所
来源:匿名网友投稿 2012-11-02

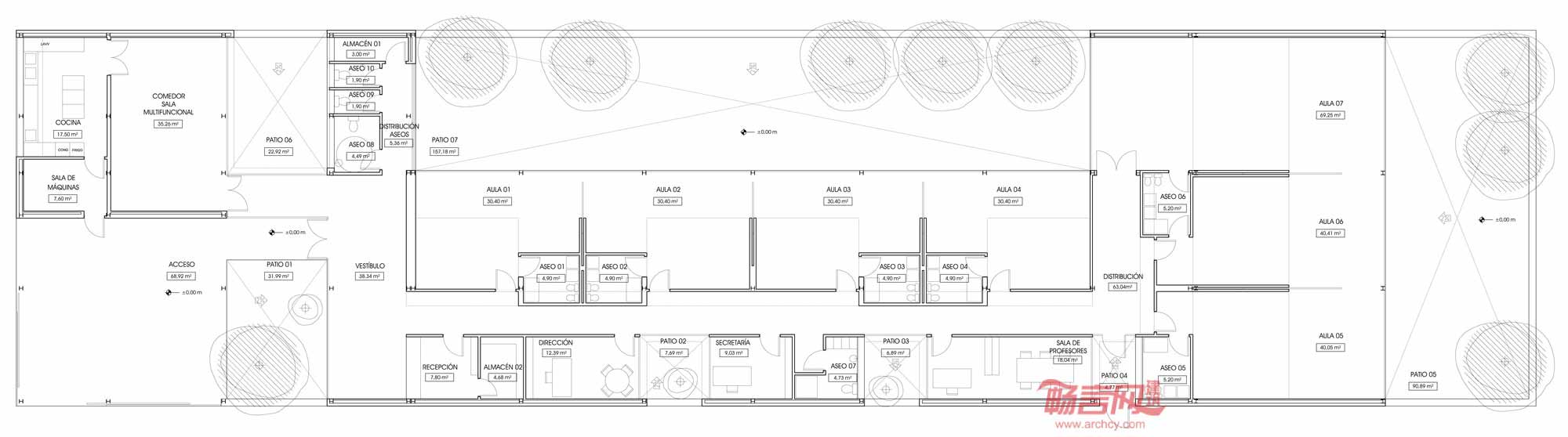
在项目场地建立托儿所解决了区域内此类服务设施缺乏的局面,场地位于一片开发区内,其形态决定了场地不适合采用此类建筑常用的室外功能模式。

建筑所处的社会环境显示出强烈的对照特性,两侧分别是社会保障性住房和造价高昂的住宅。由于社会保障住房的外向型特点,街道几乎成为了住房的延伸部分,一侧的豪宅则采取了与外界隔绝的模式。

项目设计师理智地面对了场地环境,没有选择逃避现实的方式。场地布局和狭长形状造就了一系列庭院的外观。在组织有序的方案以外,设计师开辟了一些天窗结构,为教室带来了间接采光。

为了在短工期内完成项目任务,项目采用了预制建筑系统、预制混凝土板外墙、石膏板隔断、锌金属屋顶,并结合钢结构和复合地板,极大地缩短了项目时间。
项目设计:Antonio Blanco Montero
项目地点:西班牙Camas
项目面积:593.95sqm

发表评论
最新评论
投稿
