澳大利亚:John Curtin艺术学院
来源:网友抹茶夏天i投稿 2015-08-05
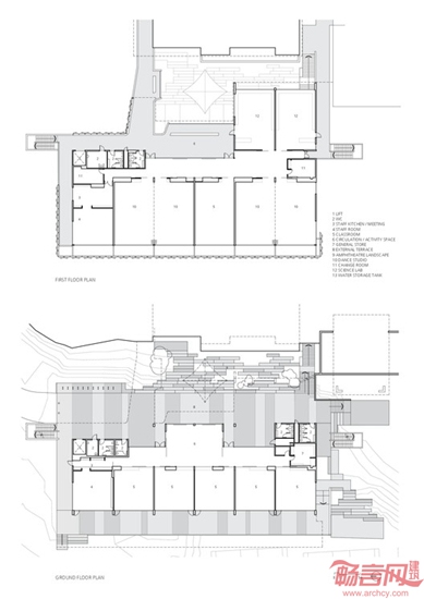
项目位于澳洲弗里曼特尔,是珀斯市的卫星城。学院创办于1856年,有着一百多年历史,起初是一所语法学校,于1943年建立了永久校舍。学院是澳洲首个提供戏剧和舞蹈教学的机构。90%的学生是通过特殊才艺和足球天赋得到入学资格的。学校建筑有着优越的视野,朝向城市老港口和渔船码头。







本站申明:网友阅读本站内容,视为认同本站协议,协议详情请点击查看
标签:澳大利亚艺术学院JohnCurtin
发表评论
最新评论
相关阅读
投稿

