芬兰基尔科努米图书馆 | JKMM Architects
来源:网友南风未起投稿 2020-11-30
Fyyri图书馆位于芬兰的基尔科努米(Kirkkonummi)。基尔科努米紧邻芬兰首都赫尔辛基,拥有近4万人口,城市中心是一座中世纪的石砌教堂。Fyyri图书馆位于该教堂的正对面,与临近的露天市场一起,它们成为基尔科努米的市民中心。
JKMM事务所对这栋拥有历史沉淀的图书馆进行了改造。图书馆的新立面使用铜瓦覆盖,呼应基尔科努米作为航海码头的历史。另外,为了突出与教堂的联系,我们为图书馆设计了一个50米长的屋顶露台,从这里可以俯瞰到对面教堂的庭院。
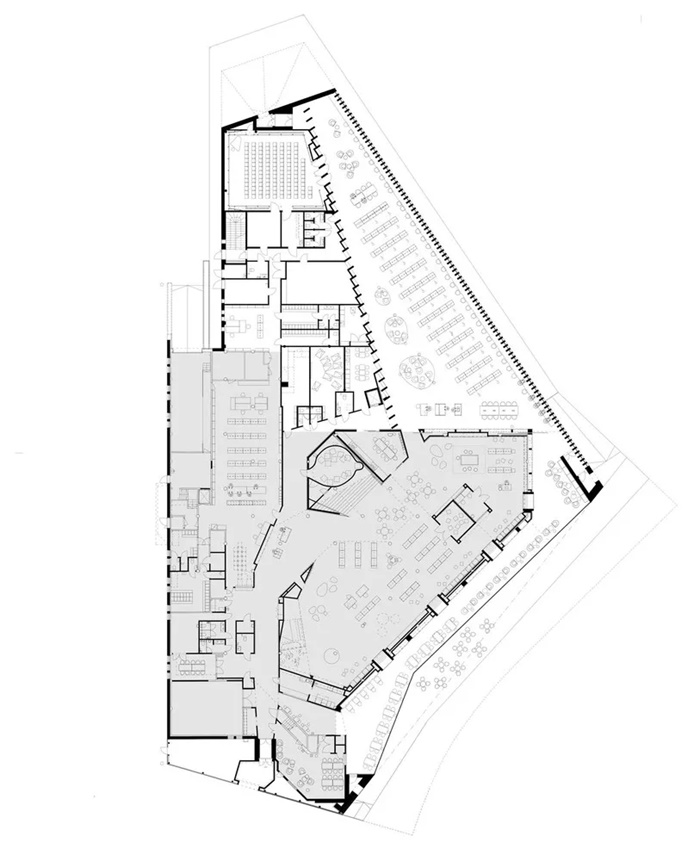
原图书馆始建于上世纪八十年代。我们利用原建筑的钢筋混凝土框架,对其进行了扩建,使容积扩大为原来的两倍。我们还为图书馆添加了丰富的社区活动空间,包括幼儿活动室、青少年俱乐部以及展览区和活动表演空间等。图书馆首层的咖啡厅还设有一个198平方米的宽敞阅览室,专用于报纸和期刊阅读。
.jpg)
.jpg)
.jpg)
.jpg)
.jpg)
.jpg)
.jpg)
.jpg)
发表评论
最新评论
投稿



