英国:NEO Bankside豪华公寓
来源:匿名网友投稿 2013-09-04
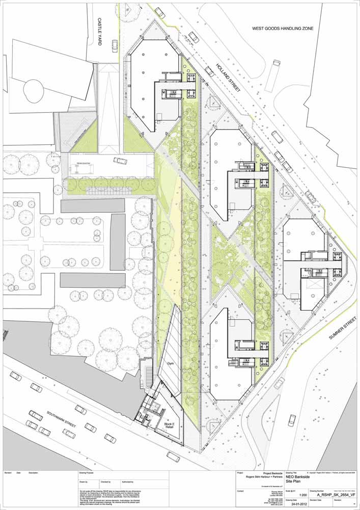
NEO Bankside豪华公寓包含217套住宅单元,项目包含四栋层数为12至24层的六角形大楼以及一幢六层高的办公大楼。项目毗邻世界上参观人数最多的艺术馆一——泰特现代美术馆(Tate Modern)。
项目中所有建筑物均符合周边文脉,各座建筑不会凌乱无章,而是协调一致,共同构成和谐的整体。总体设计参照了19、20世纪该地区的工业遗产,用现代建筑语言诠释当地建筑特殊颜色和材料。钢铁和玻璃材质建筑契合Bankside景观;Winter Garden公园的铁红色呼应了泰特现代美术馆和附近Blackfriars桥;建筑外部木材包板和百叶窗建立了温馨的住宅氛围。
建筑独特的外部支撑体系避免添加内部结构墙的必要,同时创建了高度灵活的公寓空间。位于外侧的覆层板构成鲜明清晰的体系,赋予设计方案富于魅力的特色。玻璃升降电梯为住户提供绝佳的视野。Winter Garden花园是每个楼层南北两侧封闭的单层玻璃阳台,轻型甲板上方添加大扇玻璃门,采用主体结构悬吊模式。这些空间既作为封闭的露台,同时成为室内居住空间的补充。
发表评论
最新评论
投稿