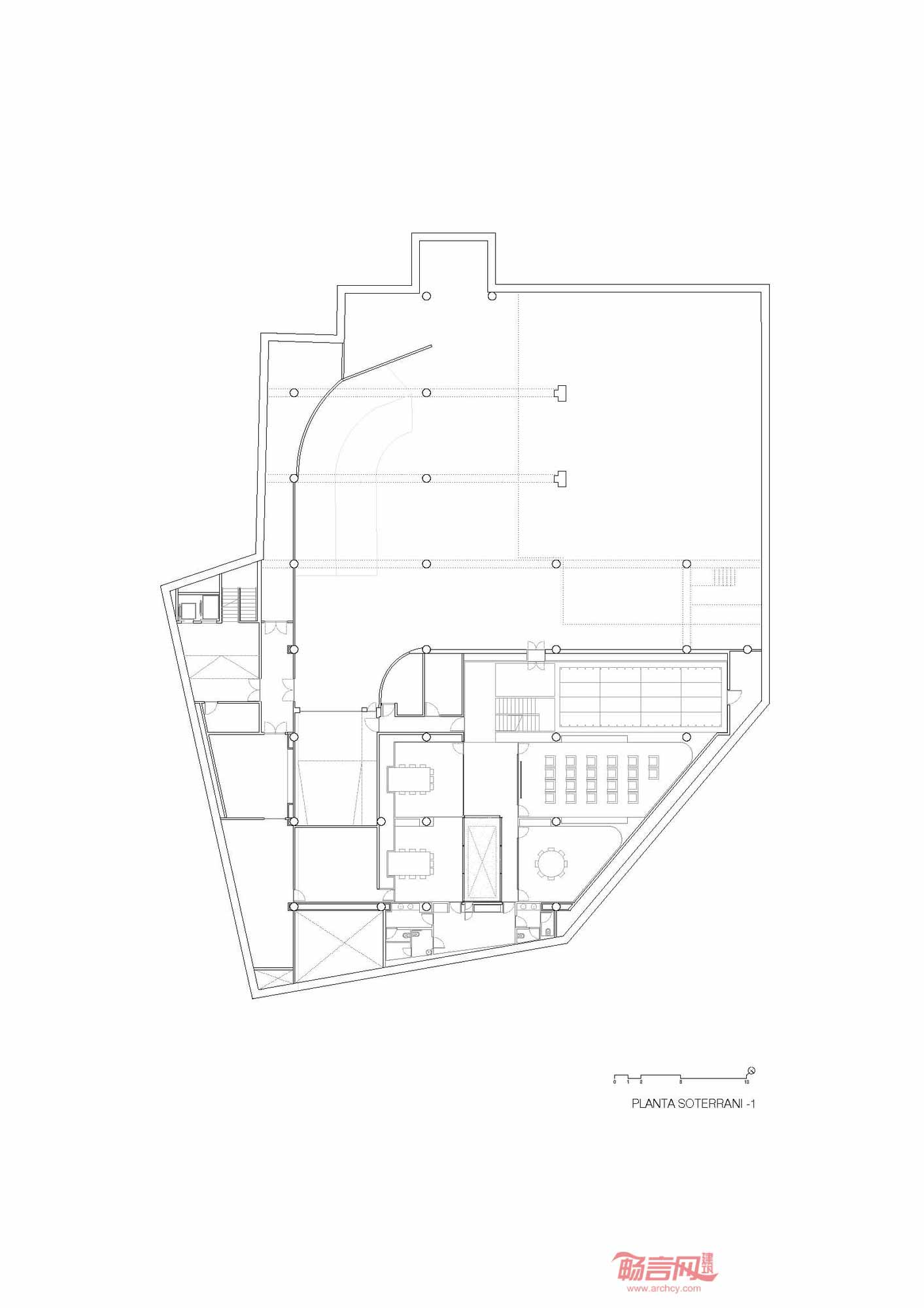
西班牙:乐家巴塞罗那展览厅
来源:匿名网友投稿 2012-09-14

OAB建筑事务所设计了乐家洁具巴塞罗那展厅,设计师设想出多种设计可能性,希望契合乐家品牌不断进取、关注当代客户需求的企业形象。

为一个商业企业设计展示厅显然不只是建立一座建筑,而是通过建筑形式树立一种形象,目的是将企业形象根植于大众的集体记忆中。

建筑设计的一大挑战来自建筑的所在地,巴塞罗那作为一座国际都市,一直是事件发生的中心。城市展现出多重面貌,人们的思想在这里交汇,城市为优秀公司的发展搭建了舞台。

由于建筑类型要求建筑具有独特个性,建筑外立面的重要性毋庸置疑,毕竟外观通常是人们对于建筑的第一印象。外立面的主要材料是玻璃,不过设计师没有把建筑变成巨大的橱窗展示物。玻璃的类型并不单一,部分只是透明玻璃,部分如同薄纱,人们只能从外部略窥一二。通过不同透明度玻璃的运用,建筑在白天黑夜呈现出不同的姿态:白天,美丽的半透明玻璃吸引人们一探究竟;夜晚,建筑则变成一座璀璨晶莹的“灯塔”。

建筑外立面添加了企业logo,通过减小尺寸并变换透明度和色调,使logo不会过于张扬。建筑形象超越了企业产品本身,使企业形象能在大众集体记忆中中占据一席之地。

发表评论
最新评论
投稿

