西班牙:Can Bisa公营住房
来源:匿名网友投稿 2012-09-25

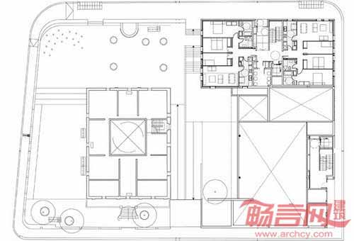
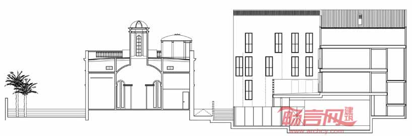
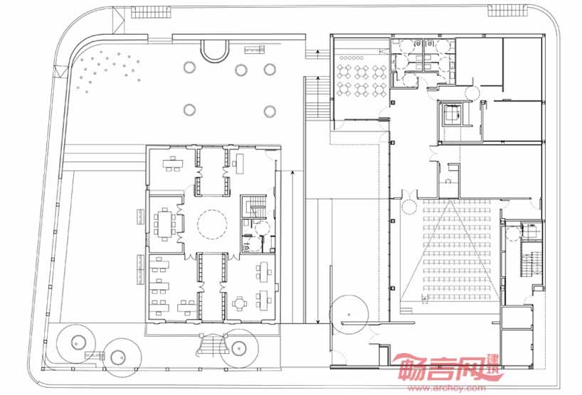
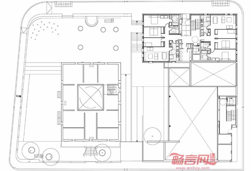
西班牙Batlle I Roig建筑事务所将巴塞罗那一所19世纪楼房改造成了以公营住房为主的多功能建筑。建筑位于Cabrils河道旁,因其特殊的位置,城市管理部门起初打算将其改造成文化中心,不过建筑的超大内部空间却使项目方改变了想法,最终建筑的一层安排了公共礼堂、酒吧、会议室,一层以上属于住宅区域。

住宅区域分为两部分,呈现"L"型,宽度符合街道的尺寸,原有建筑和新增结构之间设有内部庭院。外立面遵循了周边建筑的做法,包含了灰泥涂层和单坡屋顶元素。户外流通区域摆放了许多手工制作的陶瓷花盆。项目保留了部分废弃厂房的外立面,旨在向建筑的历史渊源致敬。


发表评论
最新评论
投稿



