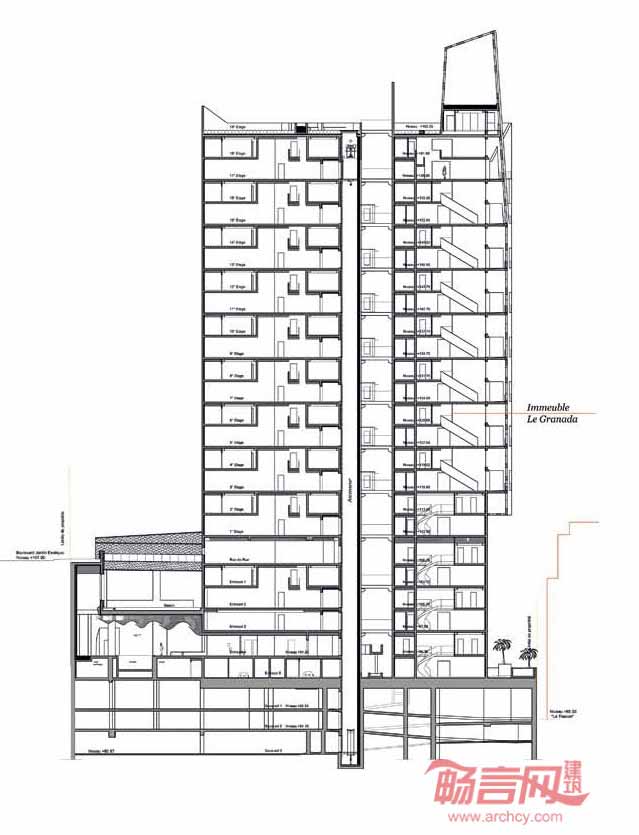
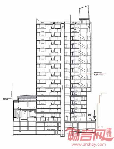
摩纳哥:Simona大厦
来源:网友迈阿密热火投稿 2012-11-13

世界上许多大城市都面临着与发展相关的问题,其中一项来自建筑用地密度加大。由于大城市中建筑用地的稀缺与昂贵,建筑向高空发展无疑成为了未来趋势。

对于摩纳哥而言,城市垂直化是不言而喻的。坐落在Jardin Exotique街区的Simona大厦,符合城市的建筑高度限制条件,为摩纳哥公国新规划树立了范例。

Simona高层建筑设计旨在为公寓提供最佳的视野与光照条件,同时为城市增添一栋独特的建筑结构、体现未来城市发展的代表建筑。

项目设计可谓野心勃勃,试图给出住宅形态学的研究结果,并在超越建筑本身的层面上,分析城市结构,并回应关于城市密度的疑问。

发表评论
最新评论
投稿
