巴西:Natura美妆公司总部办公楼
来源 2019-09-18
建筑年代:2017
建筑设计:DAL PIAN ARQUITETOS
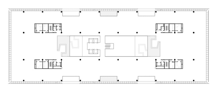
2011年,巴西Natura美妆公司发起了一场建筑设计竞赛,为其圣保罗公司总部召集设计方案。建筑基地临近公司物流中心,占据了一篇植物茂密的地块,面积约为11.2万平方公里。建筑面积约3万平米,为1600名员工提供办公场所,同时涵盖配套区、服务设施和设备空间。
建筑师希望尊重基地自然环境,将建筑构想成通透、横向100米的长条建筑。如同森林中的“漂浮”构筑物,迎接从树顶之间走道上的行人。花园、绿化和倒影池都成为“切口”,降低了建筑体量感,平衡了建筑同环境的关系。
.jpg)
.jpg)
.jpg)
.jpg)
.jpg)
.jpg)
.jpg)
.jpg)
.jpg)
.jpg)
.jpg)
.jpg)
.jpg)
.jpg)
.jpg)
.jpg)
.jpg)
.jpg)
.jpg)
.jpg)
.jpg)
.jpg)
.jpg)
.jpg)
.jpg)
.jpg)
.jpg)
.jpg)
发表评论
最新评论
投稿



