越南庆和办公空间 | Pham Huu Son Architects
来源:匿名网友投稿 2024-03-14
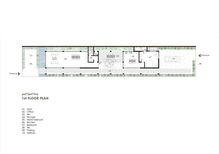
该办公楼项目位于越南中部的庆和省金兰市,距金兰国际机场以北约 10 公里。根据投资方的要求,该项目主要规划为两个区域:一个是灵活的员工办公空间和接待区,另一个是样板房空间,为客户提供更深层次的生活空间体验,从卧室、厨房、用餐区到卫生间等配套设施一应俱全,旨在为公司客户提供最佳的空间和室内体验。
位于现有地块中心的一棵大芒果树被保留了下来,在项目内形成了一个花园,将办公区和样板房区两个主要空间划分开来。此外,在这个位置还有一个容量达 30 立方米的地下蓄水池,用于收集屋顶的雨水。雨水池还与前院的鱼池相连,鱼池中的鱼类和微生物的排泄物经过过滤后,与自动灌溉水泵系统相结合,为屋顶和项目周边花园的绿化水箱供水,从而形成资源再生和水资源保护的循环。
.jpg)
.jpg)
.jpg)
.jpg)
.jpg)
.jpg)
.jpg)
.jpg)
.jpg)
.jpg)
.jpg)
.jpg)
发表评论
最新评论
投稿



