澳大利亚:Aspendale海滨住宅
来源:匿名网友投稿 2013-09-09
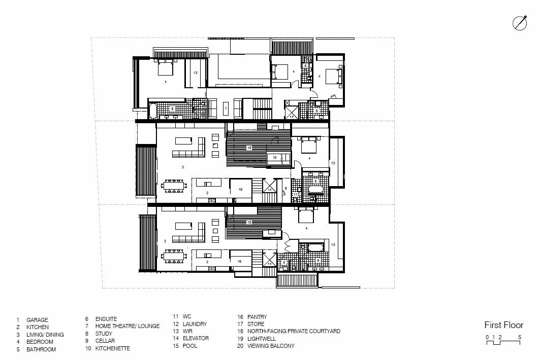
项目包含三栋私人住宅楼,地点位于澳大利亚Aspendale一块条件不佳的方形场地上,旨在取代岌岌可危的海滩居所。住宅楼均为二层,具有无可挑剔的海景。从外观角度,项目如同三栋石材覆面的方形建筑,共同创建出韵律,每栋楼的入口位于建筑之间的缩进处。建筑隐秘的临街面成为自然光线笼罩的港湾,往陆地深处形成了三栋镀锌表面的海滨住宅。
项目设置了朝北的私人庭院,住户可以尽情沐浴阳光,同时避免了海面盛行的西南风侵袭。庭院是每个住宅的关键,配置的庭院可适应每栋住宅的微环境。
本站申明:网友阅读本站内容,视为认同本站协议,协议详情请点击查看
标签:建筑住宅澳大利亚
发表评论
最新评论
投稿