美国:美国银行大厦
来源:匿名网友投稿 2012-06-29
位于纽约Bryant公园一号的美国银行大厦,由Cook + Fox Architects建筑事务所设计,是首个获得铂金低能耗认证的摩天大楼。大厦的设计和高性能表现为商业建筑和办公环境设立了标杆。设计师注重强调光照、空气和与外界环境的联系,使摩天大楼不再限于只是一个“玻璃盒子”。
这坐55层、220万平方英尺(约20万平方米)的高楼是Bryant公园高楼区的新建项目,所处的密集环境对建筑的作用提出了挑战。设计师设计了一个高透明度的大楼入口,将公众道路与私有办公大楼融合起来。大厅拥有充足的光照,城市生活和工作环境的过渡温和自然。绿色屋顶和园林室将附近的公园带进了大楼,结合大厅自然材料,彰显了城市生活中所能找寻的自然元素。
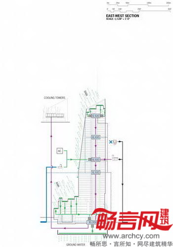
建筑形式与所占面积不同,增加了光照暴露的表面积,并提供了水平位置眺望Bryant公园的可能。大楼的保温和隔热性能良好。幕墙采用低辐射和热反射玻璃。大楼还采纳了多种节水措施,比如无水厕所、废水循环使用、雨水收集。空气过滤系统可单独控制进入办公室的空气。大厦地下室夜间的储冰罐能够制造冰块,减少峰值时段对城市电力的需求。
设计师独具匠心,考虑到工作环境以及建筑对自然环境的影响。美国银行大厦也许会成为大都市高层建筑在高效节能方面的典范。
发表评论
最新评论
投稿