墨西哥:CB71公寓楼
来源:匿名网友投稿 2012-08-30
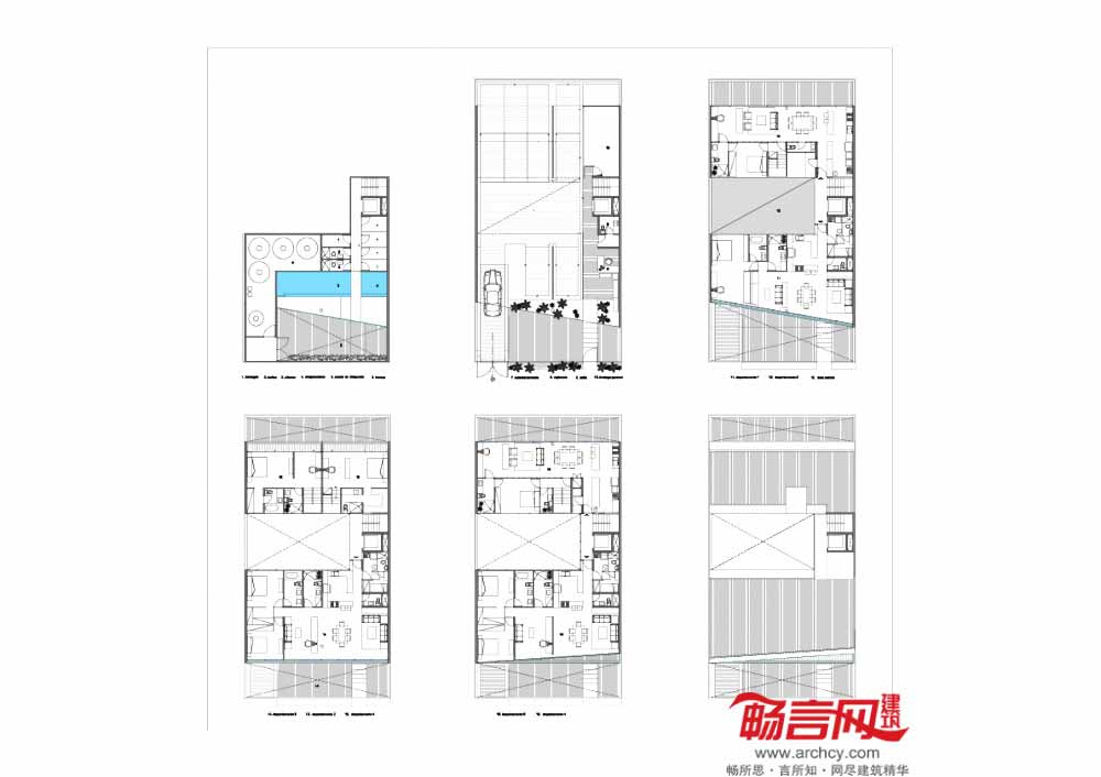
公寓建筑坐落在墨西哥城西面的Polanco区,在中央庭院两侧分成了两单元。
第一单元的每层各有3套面积为150平米的公寓。
第二单元两层各有两套面积为165平米的公寓。
公寓包含在清水混凝土长方体内,该结构特点能允许长方体按要求旋转,从而赋予每套公寓不同的形态。
第二单元公寓围绕庭院而建,在二层交错排布;通过透明和磨砂玻璃的运用,将室内空间的设计展露出来。
建筑设计:La Proyecteria
项目地点:墨西哥城
项目面积:1500sqm
项目年代:2012
发表评论
最新评论
投稿