德国符腾堡州立图书馆新楼 | Lederer Ragnarsdóttir Oei Architekten
其他来源:Lederer Ragnarsdóttir Oei Architekten投稿 2020-12-07
.jpg)
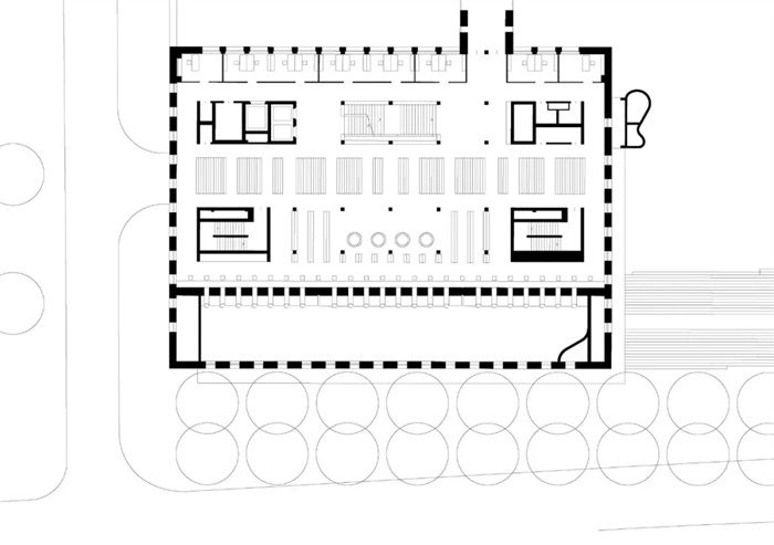
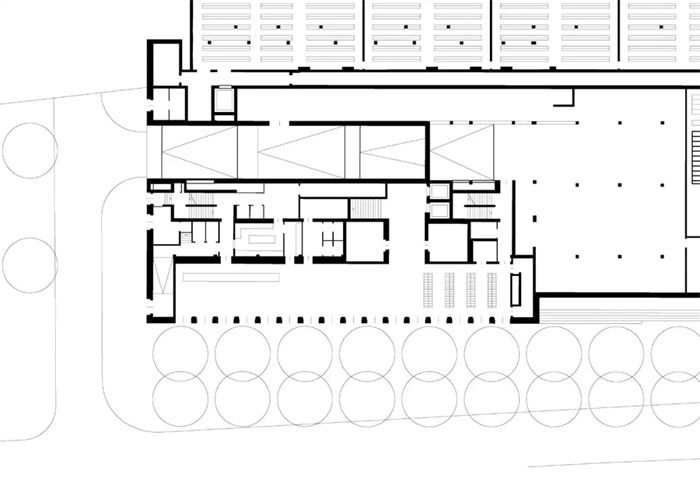
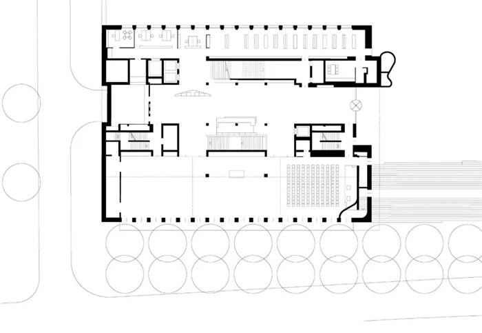
斯图加特的符腾堡州立图书馆是德国南部1960年代杰出的建筑之一。其宽敞的空间序列、周到的材料选择和高质量的建筑施工,给人留下了深刻的印象。新楼建在与老馆相邻的地块,对其空间进行补充的同时尽量减少干预。
.jpg)
.jpg)
.jpg)
新楼填充了老馆所在地块的剩余空间。建筑粗略地参考了威廉宫的屋脊高度,与老馆分开,使街道能够贯通至建筑群的下方。建设新地下停车场使以前的入口处可形成一个宽敞的广场,广场的另一侧是国家档案馆。从城市角度看,旧阅读室的立方体积现在位于新广场的中央。多级踏步建立了建筑与新人行道之间的连接。
.jpg)
.jpg)
.jpg)
.jpg)
.jpg)
.jpg)
新建筑裸露的现浇混凝土与旧建筑相呼应。在立面上,白色水泥和二氧化钛颜料使混凝土达到浅色效果。混凝土立面的外表面是一层现浇混凝土,内为隔热层与混凝土承重墙。模板为手工制作的粗锯板。
.jpg)
.jpg)
.jpg)
.jpg)
.jpg)
.jpg)
发表评论
最新评论
投稿



