日本:MYZ"巢穴"之家
来源:网友Hadenough投稿 2012-11-13

日本No.555建筑事务所在松本市一块稻田边建设了一栋低成本住宅,设计灵感来自动物巢穴。

设计师Takuya Tsuchida通过模拟鸟类或其他动物巢穴部分特点,设计了MYZ住宅,希望建筑能够捕捉周边自然环境的氛围。

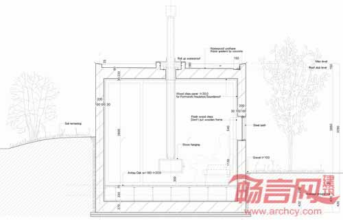
住宅如同隧道,地面略微下沉,挖出的土方堆积在房屋一侧,用于保温目的,形同养兔场构造。

通过从自然界吸取灵感,同时遵循严格的建筑规则,建筑师因而以抽象方式,重新塑造自然中存在的元素。

房屋内部,墙壁被衬上水泥刨花板,这种形式同树枝堆积形成的鸟巢如出一辙。

设计师没有在室内设置从地面到天花的全高度墙面,希望住户能够借助家具和门窗,自己设计空间。
发表评论
最新评论
投稿

