秘鲁:形似集装箱的房子
来源:网友未知中的等待投稿 2012-05-15
秘鲁首都利马南部100英里的海滩上,有一座外形酷似集装箱的白色房子。相比一般的海滩小屋,这座房子的建设规模要大一些,而且功能也更加丰富。其室内设计元素也比较多样化,不仅陈设了当地传统家具,还有一些非传统的新奇家具。
为了更好地控制采光,同时优化室内视野(面向天空和海景的),设计师将房子的整个空间打通,起居室与室外平台和游泳池都是贯通的,而且房顶也被打开了一些空间。
另外,房子有一部分是悬浮于草地之上的,给人们一种仿佛置身于无重状态下的自由感受。
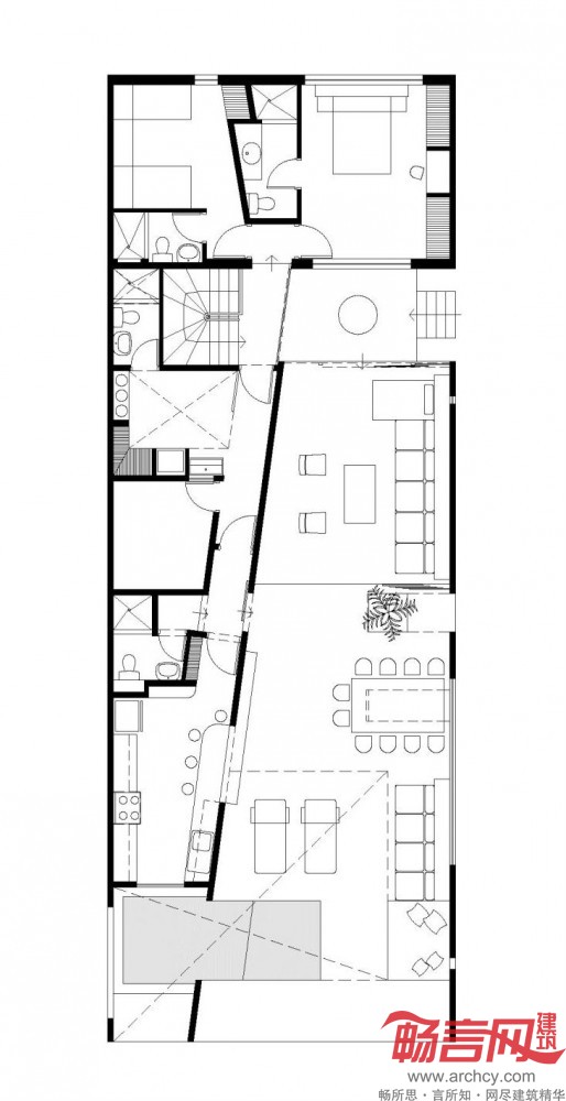
从功能上看,房子的主要空间(起居室)的周围分布着休息区(卧室)和服务区(厨房、卫生间等)。另外,主卧室和厨房与室外平台和游泳池在视觉上都是相连的,视线越过平台和泳池,可以延伸到远处迷人的海面。






设计单位:Javier Artadi
位置:秘鲁,利马
建筑面积:238平方米
发表评论
最新评论
投稿




