捷克:Keystone大厦
来源:匿名网友投稿 2012-08-08
瑞士苏黎世EM2N建筑事务所最近完成了位于捷克布拉格Karlin区的Keystone大厦的建筑设计。
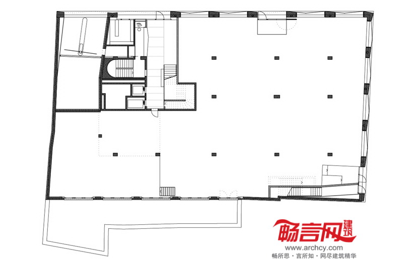
建筑主要用于办公空间,一层具有较高的层高,零售店和展示厅被厚重的混凝土剪力墙隔开,其中间隔均匀地排列了若干窗户。
铬钢和大理石的分别使用将豪华的大堂从视觉上一分为二。
服务中心偏向斜长方形建筑平面图的一侧,而模块结构便于灵活的安排。
双层立面展现了项目的风格,应和了20世纪初立体派艺术,而立体板材创造出有深度的纹理材质,并且提升了隔热和隔音效果。
发表评论
最新评论
投稿