Nord Architects | 瑞典马尔默海洋教育中心
来源:网友守诺者投稿 2020-01-09
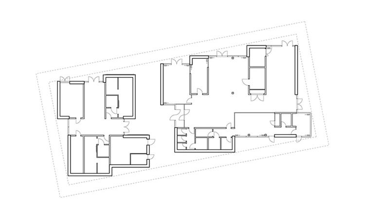
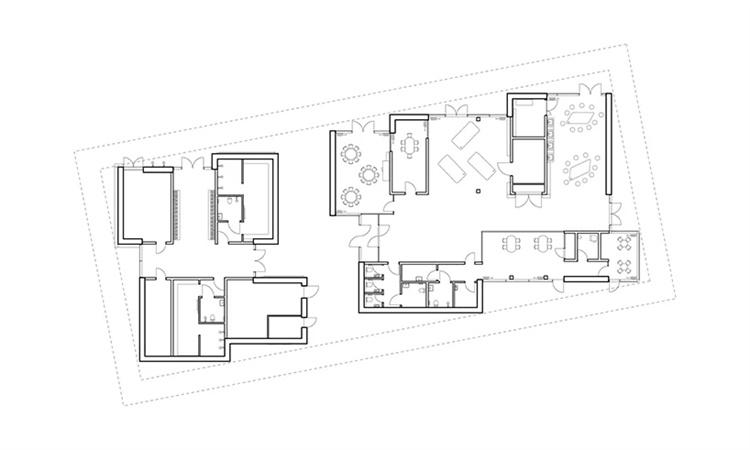
在瑞典马尔默海边,Nord Architects事务所设计了一座海洋教育中心,探索可持续性、气候变化和人类活动对环境的影响。2014年,Nord Architects事务所赢得设计竞赛优胜,获得该项目设计机会。方案模糊了建筑与景观间的界限,创造了从海岸到海洋的无缝过渡。
.jpg)
“随着气候变化、海平面上升和暴雨灾害的加剧,现在比以往任何时候都更需要了解海洋生物和海洋对人类生活的深刻影响。”Nord Architects合伙人Johannes Molander Pedersen说。正如Pedersen所阐述,新建筑旨在促进公民、企业和决策者的知识、意识和责任的提升。中心面向包括学校课程到旅游家庭在内的全部人群,由于与大学和研究机构开展合作,中心会不断寻求创新。
.jpg)
建筑设计高度灵活,允许空间随需求变化和新技术进行调整适应。在大规模、统一的屋面下,游客们受邀参加各种实验,并体验以海洋生物为主题的展览。由于与海洋关系密切,新建筑与外部环境融为一体,成为室内外活动的交替空间。
.jpg)
.jpg)
发表评论
最新评论
投稿



