伦敦公园大道1号‘圆柱塔’ | 赫尔佐格德梅隆新作
来源:网友MissBella投稿 2021-07-27
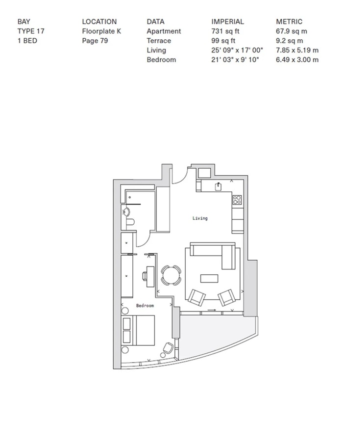
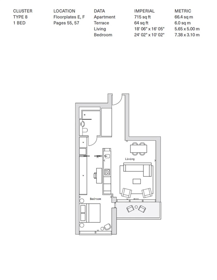
位于伦敦的金丝雀码头区域正在处于不断扩张的阶段,而其中的公园大道1号则将成为这一场地新区的一部分。该建筑将有助于塑造码头区最后一个大型未开发场地的个性重建。同时,这一建筑既具有形态上的标志性,也在尺度上充满人性化,并在设计之中蕴含了建筑在新环境中的未来展望:构筑一个多姿多彩的全球化社区,并创建一个全新且充满活力的邻里环境。
.jpg)
.jpg)
.jpg)
.jpg)
.jpg)
.jpg)
.jpg)
.jpg)
.jpg)
.jpg)
本站申明:网友阅读本站内容,视为认同本站协议,协议详情请点击查看
标签:伦敦公园大道1号赫尔佐格德梅隆新作
发表评论
最新评论
投稿