澳大利亚:墨尔本E589公寓楼
来源:网友柠如鱼投稿 2015-05-26
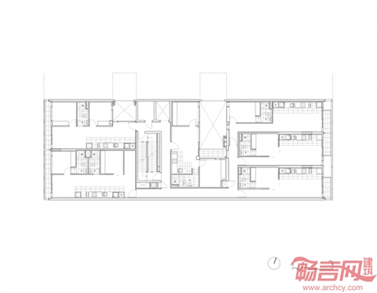
E589是墨尔本市中心一座紧凑型10层公寓楼,涵盖了55套公寓。建筑在房产开发商、房产代理、市场驱动因素作用下,旨在达到宜居性要求,符合建筑美学和城市对话。E589在周边功利主义建筑环境中,只用了较少占地面积达到了设计目标。
临街的建筑外立面阳台安装了百叶窗,使住户同环境发生了相互联系。设计师营造出的两个动感结构,围合成为封闭的圆筒,也可完全打开。遮阳系统实现了全自动化,可根据风雨等天气条件开合,增添了住户体验和舒适度。
建筑设计:Architects EAT
面积:5000平米
年代:2014






发表评论
最新评论
投稿