徐汇中学华发路南校区 | 大舍建筑
来源:网友半糖投稿 2021-10-29
设计单位 上海大舍建筑设计事务所(有限合伙)
项目地点 上海徐汇
建成时间 2018年5月
建筑面积 20208平方米
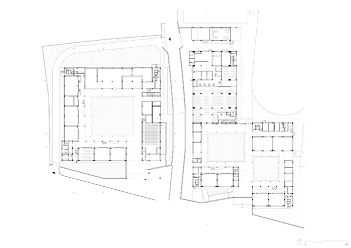
徐汇中学华发路南校区位于徐汇区华泾镇华发路近龙吴路。校区由于选址的局限,被一条进出居民区的道路一分为二,但设计上通过巧妙布局,既让东、西两个区块的功能相对集中、保持独立,又采用二层过街天桥将整个校区连为一个整体。同时,在社区道路上设置的操场区的入口,可以实现学校部分设施与社区间的共享。
学校的行政办公、食堂、体育馆及初中部设置在东区,氛围相对活跃;实验室和高中部设置在西区,氛围相对安静。这样原本分隔校园的社区道路——这个对学校布局不利的因素就被化解到最小,操场和体育馆可以利用社区道路的进出口向社区分时段服务,形成对社区有利的城市空间。
初中部和高中部的课程与教学行为特点,也一并体现在空间的布局上。校园建筑采用廊院式布局,在喧闹拥挤的狭小地块内创造了几处安静的内庭院空间,也为学生们的相互交流提供了良好的场所,在上海多雨的天气里,廊院的使用非常方便。
建筑还提供大量二层以上的平台空间,在不大的用地内为学生们尽可能多地提供户外活动场地,同时也保证了教学空间的高效布置。
华发中学在开始设计时,还没有确定是作为徐汇中学的分校区,因此设计师一开始并没有考虑校园的氛围与老徐汇中学之间的关系,采用了白色与彩色结合的外观设计,其建筑风格与团队的嘉定桃李园中小学类似。
但在建筑施工的过程中,华发中学被徐汇区教育局确定为徐汇中学的分校。徐汇中学历史悠久,其前身为清道光三十年(1850年)天主教耶稣会创办的徐汇公学,校园中著名的崇思楼由比利时神父、建筑师第斯尼设计草图并任督工,于1918年6月20日落成。
建筑的外立面为砖石结构,外墙由水磨红砖与人工凿毛的花岗岩为主材构筑而成,有很多科林斯柱式的壁柱。徐汇中学的校长希望华发路的分校能够考虑这一文脉,在新校区中仍能体现与老校区在氛围上的关联。
虽然原设计使用了白色与彩色,但是在关于设计的考虑中,结构仍是一个与空间相结合的要点。最初的教室布置就是从天花上梁的分布而开始的,同时兼顾了外部体现建筑意图的构件。所以设计师最终决定,采用红砖肌理的外墙与部分结构构件的外显,来重新梳理新校区建筑的外观。
结构构件在外立面上的显现有两个重点。在沿华发路教学楼的南立面上,为遮挡华发路上道路的噪音,设计师在窗台高度处设置了混凝土挑板,这些挑板也让高楼层窗边的学生感到安全。挑板连同窗上主梁以及窗台板均由混凝土浇筑,这个混凝土构件就为南立面赋予了非常特别的建筑形式。
建筑朝西的挑板下落到窗洞的上沿,用于遮阳。建筑朝向内院的外廊,由于从教室内挑出外廊的主梁和外廊的封边梁没有设计在同一高度,有所错动,便在走廊上形成了有趣的高窗,也产生了有趣的立面。
建筑的次梁高度和主梁高度不同,但是让主次梁的底部齐平,这也是结构参与空间界面营造的一个小手法,这在体育馆的室内同样可以看到。
最终,尽管华发路分校区的建筑完全没有和徐家汇老校区相像的建筑形式,但是在立面体现的思维逻辑与外墙材料的某些近似性,让两者仍然构成了一种延续性。
设计单位:上海大舍建筑设计事务所(有限合伙)
项目地点:上海市徐汇区华发路68号
项目功能:学校
建筑面积:20208平方米
设计时间:2012年5月
建成时间:2018年5月
项目团队:柳亦春、陈屹峰、王伟实、伍正辉、宋崇芳、左龙
.jpg)
.jpg)
.jpg)
.jpg)
.jpg)
.jpg)
.jpg)
.jpg)
.jpg)
.jpg)
.jpg)
.jpg)
.jpg)
.jpg)
.jpg)
发表评论
最新评论
投稿



