|

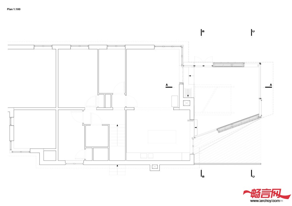
云顶住宅(Cloudy House)是对一个20世纪30年代住宅翻修扩建之后的住宅,由于这个年轻家庭的家庭成员的增加,旧宅已经盛不下了。旧宅的屋顶能够延伸出新建部分许多,好像一片云彩一样,因此称为“云顶住宅”,它使这个翻新的住宅看起来既现代又有活力,同时又将新旧两部分自然的融合起来。新建部分也巧妙的采用了原住宅的外形,包括屋顶的角度和窗户的朝向和布局等等。扩建后的住宅还有一个三角形的室外露台,这里与花园相接。在外墙的边上还有一排嵌入式的长凳,它看起来仿佛是外墙向外折叠出来的一块一样。

水平方向如骨架状的木质外墙更加凸显了屋顶的开阔性。此外,水平方向上空间大小的减少让住宅看起来更有活力。新建与旧宅之间的连接处是几个大窗户,这样的设计不仅让阳光可以穿透到各个空间去,也微妙的将两个部分自然的连接起来。

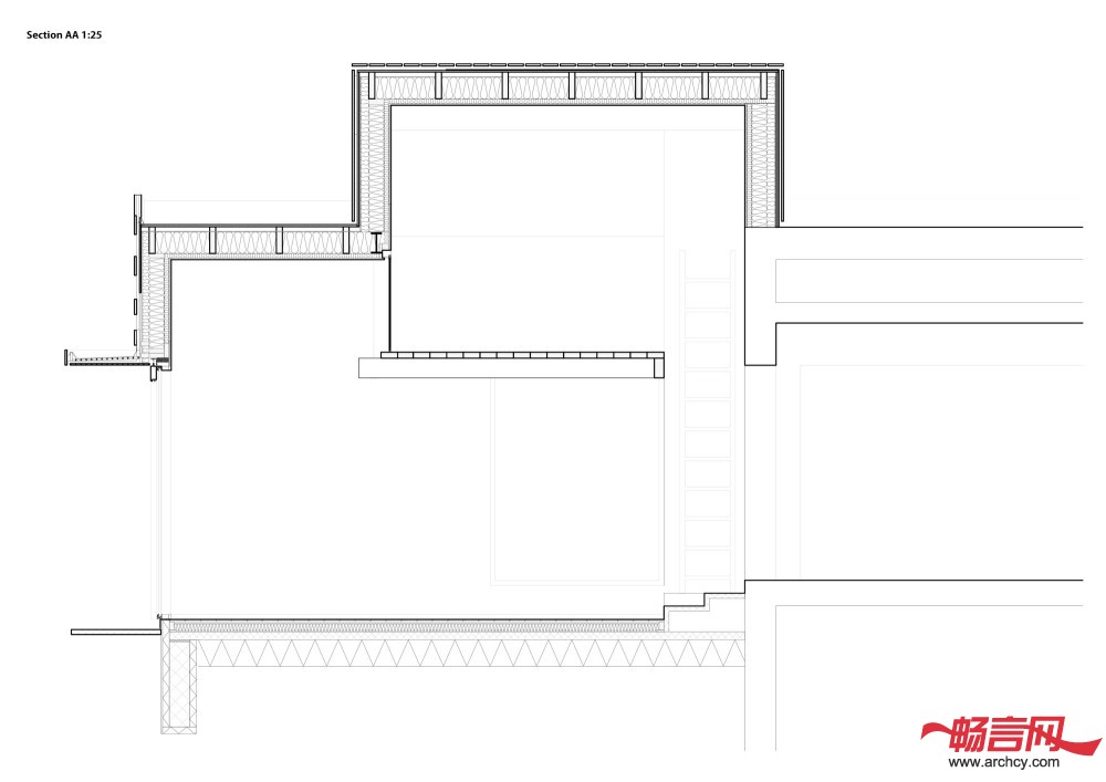
从室内看,建筑师在起居室的上面设计了一个大的木质阁楼,阁楼使用半透明的材料围成,光线可以通过老虎窗照耀到阁楼及下面的起居室里。阁楼用细钢丝固定在天花板上,这就营造出了一种飘浮和云形的感觉。

经过一个放置在水泥台阶上的木梯就可以到达阁楼,这个水泥台阶也连接了旧宅和新建部分。阁楼将会用作卧室使用。透过阁楼的窗户就能看到星星和树梢,这让人仿若睡在闪耀的星河下面的云朵上一样。

半透明的阁楼还“宣告”了后面部分是新建的。而阁楼里面的效果则是相反的 —— 墙板与周围环境的色彩相似,所以阁楼仿佛在起居室里隐身了一样。

新建部分的窗户都设置在能让它们对室内墙壁产生一定效果的地方,这样就会让室内墙壁看起来又薄又亮。白天时候,大块的窗户让阳光渗透到住宅的新旧两部分去。夜晚,墙壁上的灯照亮了起居室,营造出一种既亲密又开放的效果。









|