|

高空花园位于墨西哥北部城市蒙特雷的郊区,它周围由雄伟的Sierra Madre Oriental山脉所围绕。

这座建筑的设计宗旨就是要最佳利用这里特殊的地理位置,来建造一座独特的建筑,并让它能帮助缓和这里极端的气候条件。

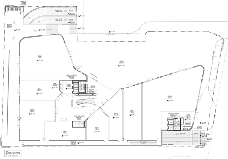
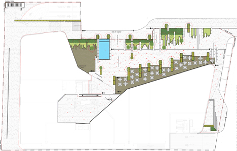
大楼没有占用其地块全部的面积,反而向后退了一些,留出一些户外阴凉区域给居民、来往行人和游客 --- 这是rojkind arquitectos建筑事务所的一贯做法,而这种做法也是大楼与附近的人行道连接起来。

“一般来说,这种开发项目不会允许留出娱乐和公共区域,因为开发它们的目的就是要最大限度的实现大楼的商业利益。而这座大楼则留出了一些地方作为公共区域,让每个人都可以使用,十分难得。” rojkind arquitectos建筑事务所的合伙人Gerardo Salinas说。

为了低档太阳强光,大楼的每一楼层都相互错开,这样就能让光线与阴影平衡起来。此外,大楼还是用了由当地工匠制作的石板作为幕墙,这样不仅能让幕墙的温度低一些,它还能让大楼的外观随着太阳位置的变换而改变。

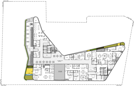
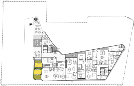
大楼交错的楼层为每间公寓提供了一个室外露台,这样,居民就可以看到附近山脉的景色。

“每个人都喜欢自己的房子外面有个花园或者公共区域,而这些往往是一般的公寓所缺乏的。而我们所建的这座综合楼不仅有阳台,它还拥有高空花园,我们敢说,这样的建筑在蒙特雷是独一无二的。”rojkind arquitectos建筑事务所的合伙人Michel Rojkind说。

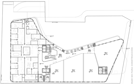
高空花园有十层的地上部分和三层半的地下停车场。

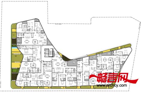
在这地上十层里,有两层是商业零售用房,其余八层则是豪华公寓。而这八层则为居民提供了包括游泳池、健身房、温泉浴场等生活娱乐设施。

高空花园里共有32间公寓,它们的面积从250平米到650平米不等。

六位当地的设计师将每间公寓设计的别具一格,每间的风格和市场定位都不相同。

每间公寓的布置和构造也不相同,有的单层公寓,而有的则是双层公寓。









|