|

新加坡-吉隆坡Aamer建筑事务所完成了位于实乞纳路的Ninety7住宅项目。
这座三层高的曲线形住宅获得了大奖。它位于新加坡,是为一位单身的年轻企业家而量身定做的,这里也将是他未来组建新家的地方。

Aamer Taher说:“房子的主人很清楚地表明了他需要什么,并将建筑形式和风格的设计问题留给了我们,他只对房子功能方面的设计和我们探讨了一下。”
这个项目获得了2011年新加坡建筑师学会(SIA)建筑设计大赛的私人住宅项目类别的大奖。

“站在实乞纳山山顶可以俯瞰整个城市的迷人风景”, 这就是这座住宅设计的灵感之源。主卧室和家庭共空间位于三楼,这样就能保证从这两个区域拥有最佳的视野。

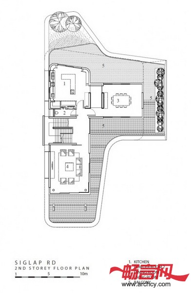
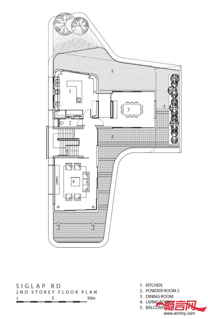
起居室和餐厅位于住宅的二楼,与外部走廊/露台相接。走廊/露台顺势而上,巧妙地构成了一个悬垂屋顶,它可以为住宅遮挡阳光,也可以引导自然风穿过整个住宅空间。

两间具有海滨风情的“Cabana”卧室位于住宅的一楼。它的旁边有一个游泳池,带有屋顶的露台让它可以举行水边排队。一个雕刻的金属“鼓”状空间将这艘船似的住宅固定在地面上,它的里面设有卫生间、淋浴间和烧烤餐具室。屋顶花园和木质甲板为这座住宅遮挡了炎炎的烈日。

2011年新加坡建筑师学会(SIA)建筑设计大赛评委评论道:“这座由建筑师和业主密切合作设计的住宅给评委会留下了很深的印象。它是一座让人耳目一新的热带建筑。

当站在这座住宅的里面时,空间敏感性便会油然而生。建筑师和业主选择将卧室定位在一楼,并让它朝向游泳池,使它拥有海滨私家小屋的感觉。起居室、餐厅和娱乐空间位于二楼和三楼,在这里可以看到整个城市的风景。这种空间设计方式为建造住宅的流线型阳台奠定了基础。这些阳台可以作为扩展娱乐区,它们也美化了室内环境。起居室的上面、后面、侧面和前面都可以打开,这样既使这里拥有最好的视野、自然光和通风效果,又无需担心日照雨淋。










|