|

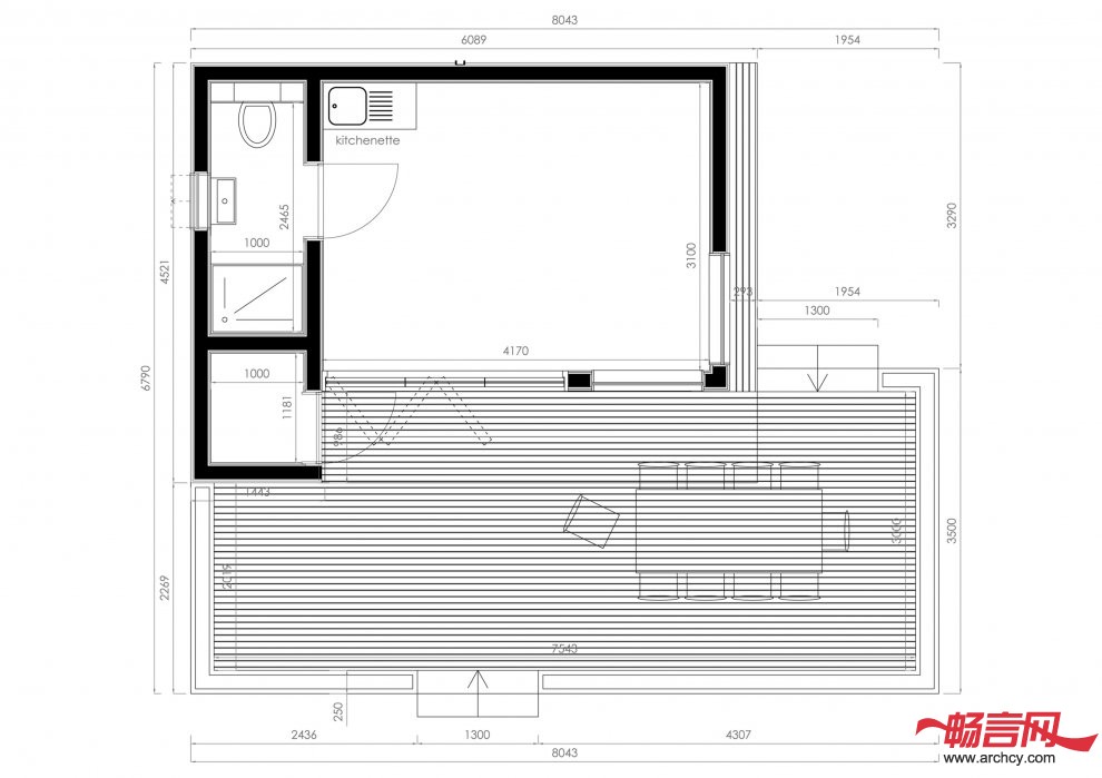
这个项目的地址在风景如画的牛津,客户要求这个房子里要有厨房、浴室和宽敞的室外甲板区域。木屋主要用作两种用途:
﹒常年可以使用的客房
﹒夏日的休闲之所,举办烤肉和野餐的好地方
In.it工作室为客户量身打造了这个木屋,工程小组全权负责小屋的建筑设计和细木工活,既满足了客户的要求,又呈现出一个漂亮独特的建筑。

建造这间木屋非常重要的一点就是要与周围环境完美融合。花园的地形高低起伏,这给设计带来了一定的挑战,设计师把这样的地形设计成景观,让木屋和花园之间看起来没有过与扎眼的线条。花园俯瞰着下面美丽的泰晤士河,所以小木屋的位置要能有最好的视野。细木工和建筑小组通力合作,保证木屋的设计、空间布局和质量都达到最好,并且能融入到周围环境里。

阳光透过双折叠玻璃门照进室内,室内室外都用木板进行装修,这让房子更与周围环境融合起来。屋顶下还有点光源照明灯,这在夜晚营造出一种朦胧的灯光,让小屋显得温暖、柔和,让人十分放松。每间小屋里都安装了白玻璃板暖气,四周厚厚的墙壁能很好的为屋内保温,这让小屋在冬天也很暖和,也满足了客户希望小屋四季都可以用这一要求。
花园小屋,无论是举办聚会还是品着酒看日落,都是绝佳的地点。

|