|

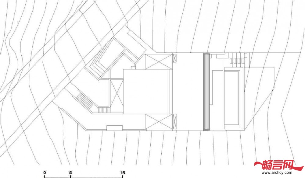
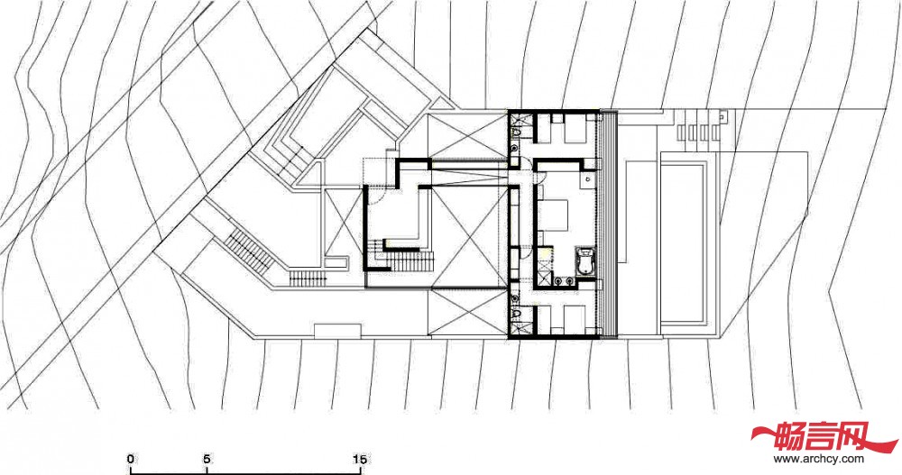
东边是一望无际滚滚的沙丘、西边是太平洋沿岸险峻的峭壁,这就是Casa Q的地块位置。Casa Q是第一个建立在没有被Misterio海滨峭壁探险俱乐部占据的土地上的住宅,它位于秘鲁利马市南部117公里处。
Casa Q 战胜了这里陡峭的地理环境,实现了一对年轻夫妇“悬浮住宅”的梦想,这里将是他们未来的家。这个悬浮空间由几根圆柱支撑着,这些圆柱是随意放置的,而不是按固定格式必须形成一个网格。在这些圆柱中间有几个滑动玻璃门,它们共同界定了房子公共空间的范围。根据天气条件的不同或者是社交场合的需要,主人可以选择打开或者关闭这些玻璃门,所以,当门打开的时候,起居室、餐厅空间和阳台空间就连接到了一起,成为一个空间;而当门关闭的时候,这两个空间就又分开了。

房子的其它几个房间 --- 客房、厨房和其它房间 --- 巧妙的安排在了这个斜坡地块的后部,这样就是房子的前后景色形成了鲜明的对比:房子的前部是一个游泳池。此外,住宅里的每一处景物都与屋外一望无际的精致联成一体。







|