|

这座小住宅位于美国的Edgemoore社区,它的主人是一位思想前卫、讨厌复古设计的年轻企业家。所以,他要求设计师将他的住宅设计为一个实用、占地面积小、并不让建筑和人造景观占用整个地块太大面积的住所。
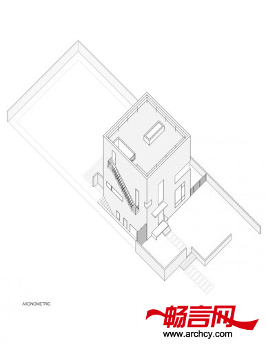
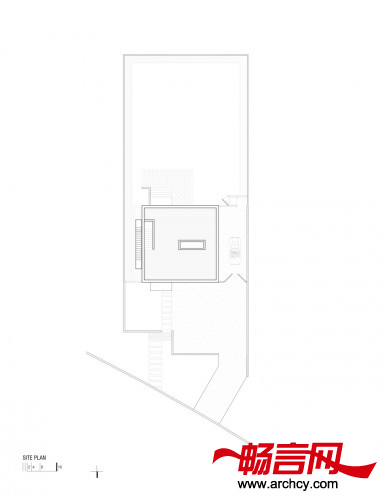
经过考虑后,工程师决定将原有的、效率不高的建筑拆除,再重建一座高效的住宅。新住宅的面积只有原有住宅的三分之一,而其余的面积则建成绿地。住宅外观呈立方体形,它占地204平米,整个建筑都没有无用或滥用之地,就连屋顶也得到了充分利用 --- 它为主人提供了102平米的屋顶观景台,从这里可以尽览树木的翠绿和远方贝塞斯达市中心的繁华。

一楼的窗户面朝住宅地块的围墙,由不同大小的矩形或正方形玻璃组成,这样主人便能尽情欣赏屋外的绿地,同时也避免了周围其他住宅对本宅的“窥探”。几面经过特别设计的景观墙与外面的街道、院内停车位和住宅协调的融合在一起。住宅室内也充斥着明亮和清新的色调。茶色的地板为白色的墙壁、木制家具做了恰当的底衬,也达到了让室内设计与灰色的外墙“里应外合”、相得益彰的效果。

这座住宅为该社区住宅的设计理念及建筑成品都开立了先河、树立了典范,值得其他设计师及客户去斟酌及学习。它没有沿承旧式郊区那些面积巨大、矫揉浮夸的建筑类型,反而建造了一座精致实用、现代感十足的城市建筑。它能与周围景观相协调、极其注重环保、不失舒适又能满足人们高效的生活。
|