|
.jpg)
一座新大楼 —— 医学技术科学中心屹立在了柏林市中心的波茨坦广场上,它是Otto Bock医疗有限责任公司在柏林的办公楼,由大楼的拥有者Otto Bock、Gnädinger建筑事务所和媒体设计公司Art+Com共同设计。
.jpg)
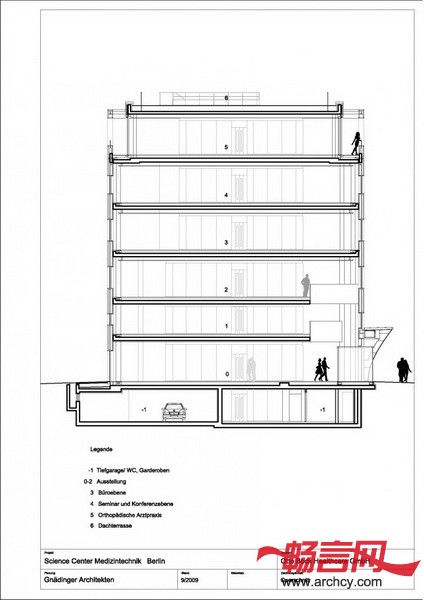
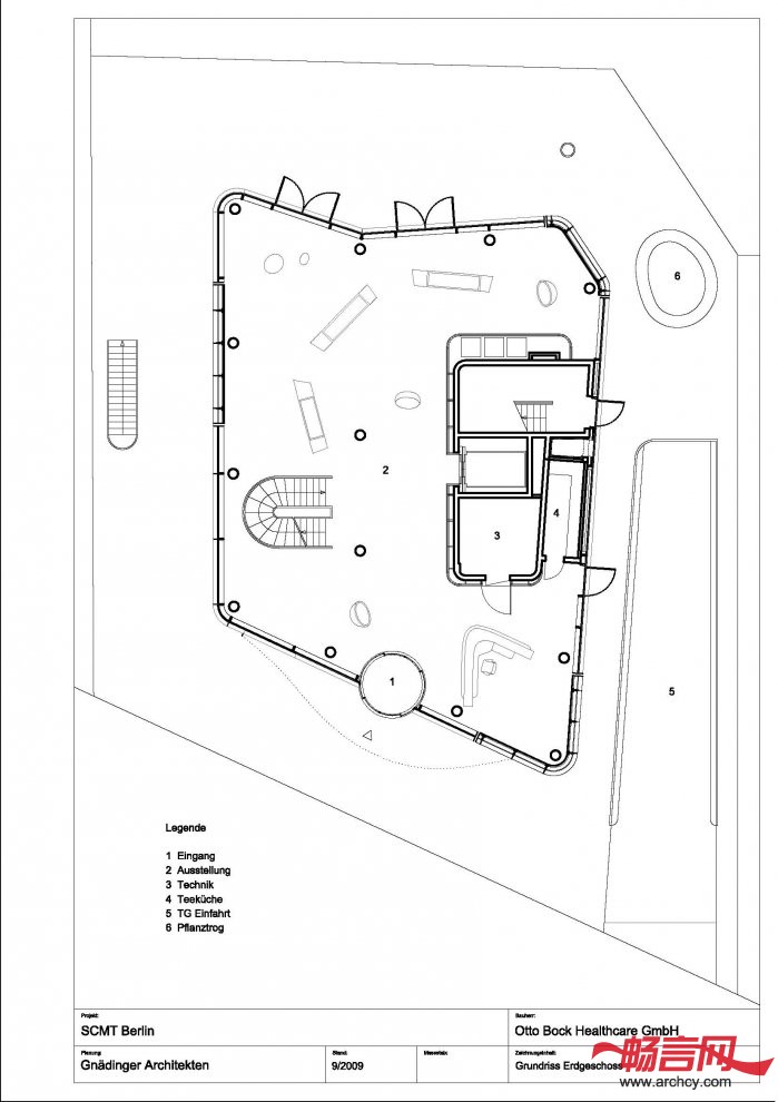
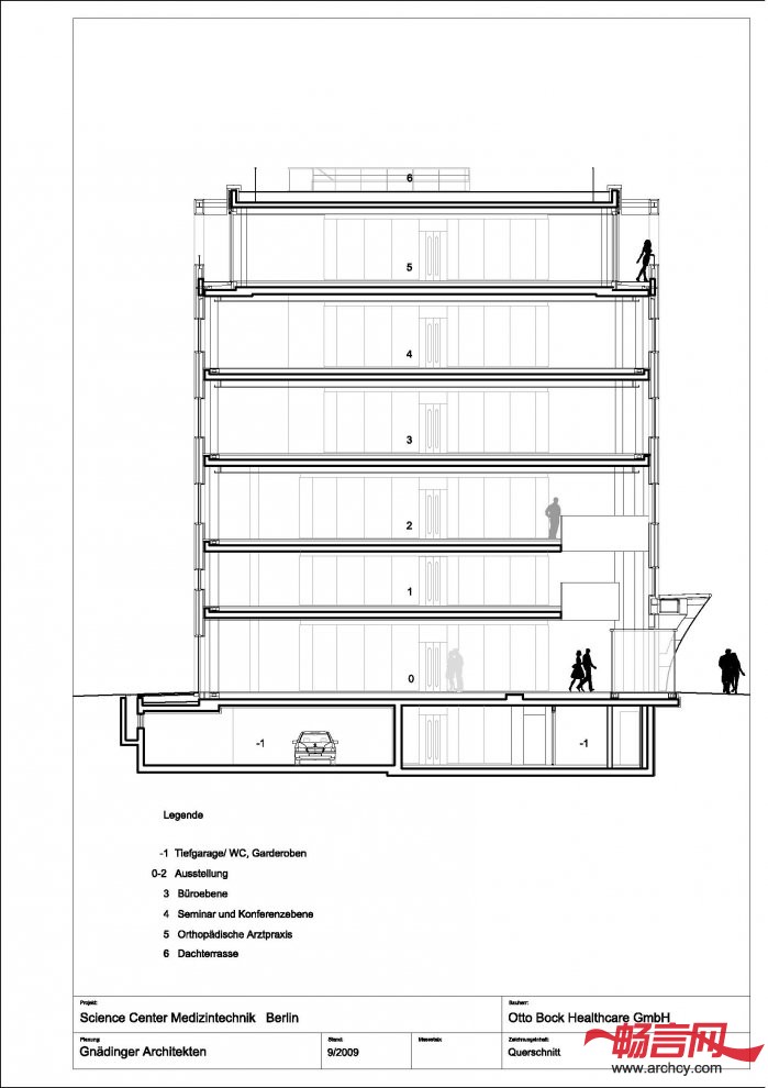
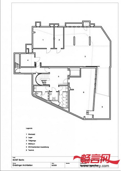
柏林Gnädinger建筑事务所以人类肌肉纤维为理念出发,设计了一个形状新颖、抽象的幕墙,它围在六层的混凝土结构外围,形成了1000平米的楼层面积,让大楼显得漂亮又有活力。Gnädinger的设计将高科技和自然和谐的融合在了一起。大楼外层一条条白色缎带式的装饰是预先制作的,它是根据人类肌肉纤维的模型设计的,象征着复杂的生物进化过程和结构。大楼的“外壳”是用铝板和玻璃幕墙组合而成的,它在柏林开了先河 —— 柏林大街上不是传统的石头建筑和就是现代的玻璃建筑。在Otto Bock科学中心周围的建筑都处于著名建筑师之手,包括Richard Rogers,Renzo Piano,Helmut Jahn, Hans Kollhoff和GMP建筑事务所等等,这也显示了这座紧凑建筑的独立和自信。
.jpg)
Otto Bock科学中心大楼不仅与柏林市的石质建筑和它们连续一致的外形相互呼应,它还保持了自己的个性和优质感,从而成为了现代建筑装饰的新代表。
.jpg)
.jpg)
.jpg)
.jpg)
.jpg)
.jpg)
.jpg)
|