|

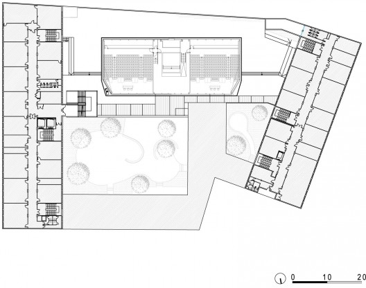
巴黎笛卡尔大学希望重新建造位于法国第16行政区凡尔赛大道143号的两座法国大学科技学院(IUT)的阶梯教室。它们被建在城市岛的中心,大学的停车场之上。负责这个项目的Atelier Zündel & Cristea事务所在运作过程中需要对其制定复杂的构思和规划方案。新的建筑依然建造在现有的停车场之上,然后一层层叠加上去,同时在其周围留有光滑空间。这样的设计不但使建筑易于学校的管理,也让使用者对大楼的其内部结构一目了然。
阶梯教室垂直高度的降低增加了建筑的整体美感。既要节省使用电梯的费用,又要保持每个功能区域非常紧凑,同时又不影响建筑的整体功能,又使各个功能区根据它们的用途安排到一个楼层,这就是这座建筑独到的设计理念。

从美学方面来讲,该项目旨在视觉和舒适角度达到最佳。这两座演讲大厅和办公室面向正南,靠近绿化带;自然光线透过遮荫阳台照射到建筑里,甚至停车场的一些地方也能够得到阳光的照射,这得益于安装了防火玻璃地板。
在这个独特的建筑之中,它的建筑体量和它周围的即将留出的空地一样重要。建筑师尽可能地将空间设计得更加紧凑,使用单一的木材进行幕墙建设。通过在与视线相平的部分安装窗户的同时,在其结构上方也安装了窗户,从而增加了建筑内部的透明度和视野,可以让人们看到整个内部庭院。建筑师希望通过改善建筑的整体质量来建造一个宁静祥和的建筑。

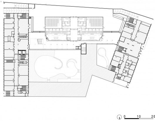
新建筑主要为金属框架成外墙,并采用然后用预定的木板进行绝缘处理。这个做法有两方面的原因:第一,它减轻了建筑的重量;第二,它方便建筑工作的进行。建筑师们在车间预先组装好镶嵌板材,这样就减少了具体的施工时间。


|