|

比利时Beel & Achtergael事务所设计完成了V in T别墅。
这座两层高的现代别墅位于比利时的佛兰德斯,并于2009年竣工。
客户希望建造这样一座住宅:它可以让他和家人在此享受宁静的生活,为他们提供很好的隐私,又能让朋友来做客,一起享有这份舒适,同时,又能摆放他的艺术收藏品。

这座住宅位于当地住宅区和轻工业区混合的街道上,靠近客户上班的公司。住宅的后面是一片非常安静的农业用地,而住宅的前面则是一条车水马龙的街道。

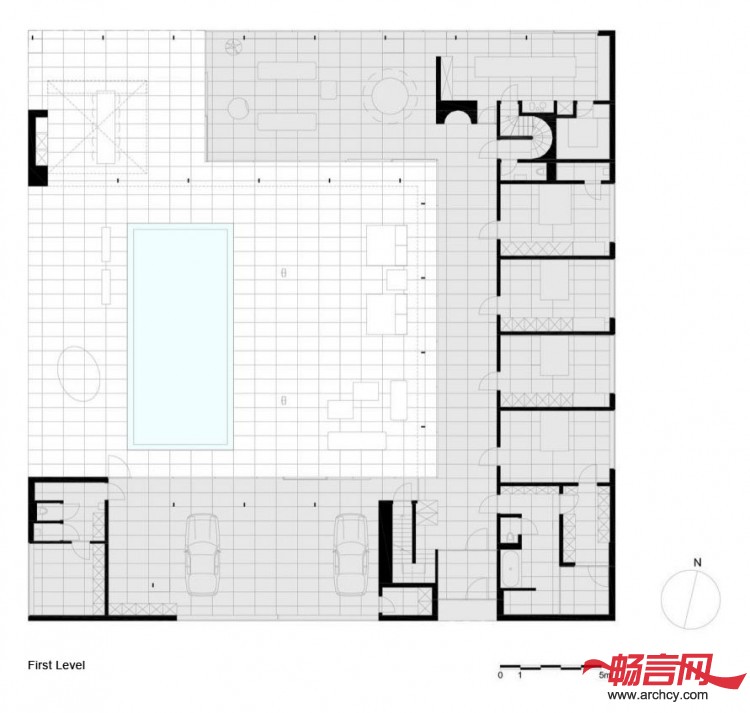
建筑师将所有的住宅功能区放置在一楼,围绕着一个露天庭院形成了U字形,从而创造出了一个“自己的小世界”。连续的玻璃幕墙使住宅的主要通道和起居室面向U型住宅围成的中心,也就是住宅的社交活动区。这里的环境非常方便舒适,宜于居住,主人可以邀请亲朋好友一起享受光、空间和艺术带来的乐趣。


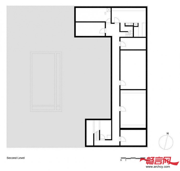
住宅外面的墙体大多是封闭的,但光滑的白色灰泥墙上稀稀落落地安装着几扇大窗户,它们会使隐私性很好的内部空间显得更加通透明亮。住宅的二楼为僻静的商务和休闲空间:分别为办公室和媒体室。它们勾勒出了这座房屋的整体轮廓,并且它们的窗户朝北设置,从这里可以看到周围广阔的风景。











 
|