|

在这些排列整齐的200mm x 600mm 的格子里,精心地收藏着各式各样的运动鞋。这些格子都一摸一样,但每行格子与其上下两行格子错位了半个格子的距离,如此这般,铺满了整个墙面。如果是一个格子的话,这么设计,那没什么特别,但是281个格子都是这样重复,它们就带给人们一次愉悦的体验。

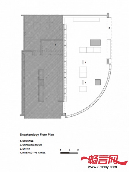
这些运动鞋犹如博物馆里的那些珍贵的艺术品一样,一双双整齐时尚地陈列出来,通过位于店内中间的触摸屏,顾客可以对相应鞋品的背景故事做更深的了解。尽管这里没有真正的“鞋道”研究领域,但对我们来说,把设计重点放在如何正确地认识这些产品上面,也是运用“学术式时尚”来研究 “运动鞋”的一种尝试。



|