|
.jpg)
位置
该住宅位于城镇边缘的一个斜坡地块上。
.jpg)
任务
为一个五口之家建造一个单层住宅,住宅要有一个不带藩篱的花园,而且每间卧室都要离客厅很近。
.jpg)
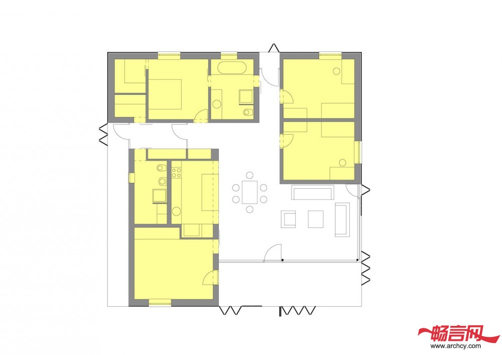
建筑
这个单层住宅位于一个方形的地块上,它的屋顶是平的,共有三间卧室,每间卧室里都配备了家庭设施,它们面朝背面,共同将客厅围了起来。客厅一直向外延伸,越过大玻璃窗一直到有屋顶的露台,露台的前面是落叶松百叶窗。这样的布局在玻璃窗和百叶窗之间形成了一个空间,可以用来以后再增加房间用。这间住宅是一个很好眺望台:从这里能看到山谷和对面的森林。
.jpg)
构造和技术
载重的木材框架包含有工型钢、玻璃棉的保温材料和护墙板材料,屋顶由聚氯乙烯箔片覆盖,最上面是一层鹅卵石。幕墙由玻璃墙和铝制窗框做成,露台试用的是热带木材,室内使用孪叶苏木做成长条地板。

|