在线投稿 设为首页  
     
    首页 >  案例 > 国际视野 > 建筑  > 正文
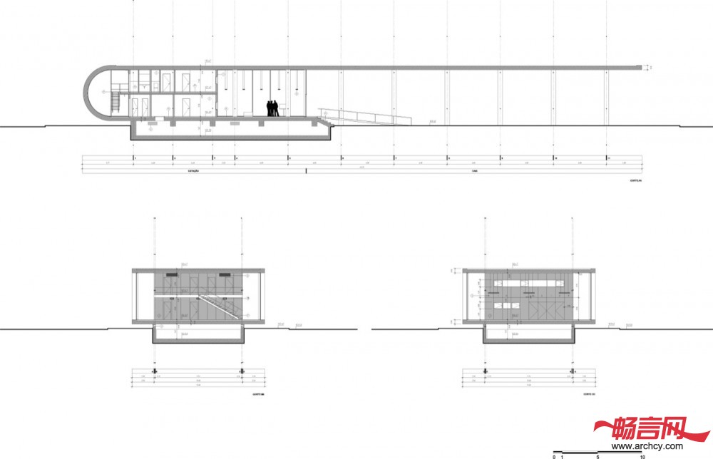
葡萄牙:里约马约尔公共汽车站
发布时间: 2011-09-15   来源:匿名网友投稿 

里约马约尔公共汽车站是该市城市规划中交通设施的一项,这个项目旨在作为一个欢迎或者送别里约马约尔游客的一个地点。这个建筑用混凝土和高强度塑料作为主要材料做成,共有两层,屋内用木质元素进行装饰。建筑使用了大块的玻璃,这让车站里面的人们可以看到外面的绿地,这片绿地是该市一个运动区。室外应在这玻璃窗上的元素都是车站里的功能区。

责任编辑: Bright
评论
昵称: 
RCC关系网

都市实践

CCDI

五合国际

筑博设计

易兰

维思平

 
关于我们 | 联系方式 | 免责声明 | 广告服务 | 给我留言 | 在线投稿
建筑畅言网版权所有
京ICP备11034636号 京ICP证090740号 京公网安备110102003037号
E-mail: editor@archcy.com 电话:86 10 56064666 传真:86 10 63107850
畅言网微信