|

HUIS-JCMZ住宅建造在一个殖民地时期废弃住宅的地基之上,廿七建筑工作室(Studio Twenty Seven Architecture) 与房屋的主人Johannes Zutt共同合作、以建造一个“花园中的小城”为总体理念,完成了这个占地2,500平方英尺的住宅。

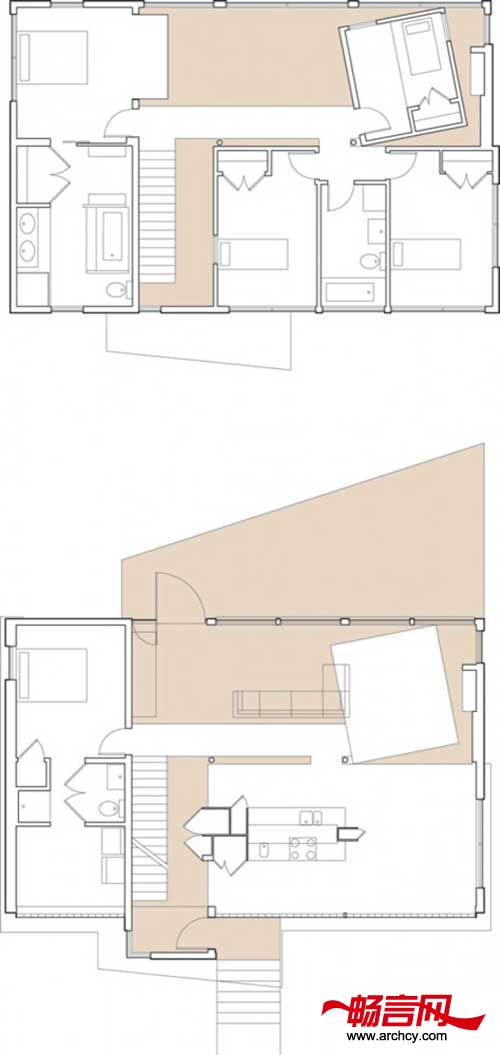
Zutt是一个往来于各国之间的荷兰籍商人,他希望这个住宅拥有明亮开阔的生活空间,同时又要用最小的细节设计来体现出欧洲著名建筑师Luigi Snozzi, Rem Koolhaas 和 Pierre Chareau的建筑风格。室内布局上,他们效仿城市规划中对街道、广场和小巷的布局方法,为住宅设计了公共和私人区域。
所以,最终建造起来的住宅,是使用严格的规划和批评式逻辑来评估住宅每一个元素的功能和效率之后形成的佳作。

住宅的主空间有一个阁楼式采光天窗,它让光线透过屋顶照进室内生活区域。屋顶的天窗可以为整个三层的住宅提供光线,而在二楼卧室的入口处也有一个蔡光天窗。枫木地板和木工制品为模铸混凝土的梳理台和瓷质壁橱提供了一缕暖色,这样,两种元素相互融合,相得益彰,使住宅的室内既温暖又有质感。

从室外看,住宅位于一个狭长的、高出街道一些的小坡上,小坡的高度正好与住宅的一层持平,它缓缓的通往一个茂密的树林。为了与周围环境相融合, HUIS-JCMZ住宅的整体和部分设计都参照了周围的房子的风格,也如其它房屋一样,离开街道一些距离进行建造。室内使用波纹铝墙板、带有槽口的雪松墙板和彩色瓷砖进行装修。这些材料分层次的镶嵌在钢框架上,这样就加强了住宅公共与私人空间分明之感。私人区域要多一层的墙板,而到了公共空间,墙板则慢慢消失了,这样就留出了大片的室内空地,透过玻璃窗,室内与室外景观就融合起来了。





|