|

新利物浦博物馆已于7月19日开馆,它不仅宣告了它对利物浦 --- 这个世界最重要的港口城市之一的重要性,它也将向世人宣告它的文化影响力 --- 就像甲壳虫乐队的影响力一样。此外,它还是历史、利物浦市民和来自全球各地的游客相会的地点。所以,该项目的建筑师Kim Herforth Nielsen说:“利物浦博物馆不简简单单的只是一个建筑或是博物馆。”

经过精心的设计、建筑的结果
利物浦博物馆是英国100年来建造的最大一座国家博物馆,它位于联合国教科文组织评定的利物浦世界遗产基地,靠近利物浦著名的“美惠三女神”(利物浦三座著名建筑 --- 皇家利物大厦(Royal Liver Building)、丘纳德大厦(Cunard Building)和利物浦港务大厦(Port of Liverpool Building)的总称,它们是海上利物浦的象征,见证了19世纪后期和20世纪初期该市的巨大财富,被许多人认为是世界上最令人印象深刻的水滨之一)。在谈到这座新利物浦博物馆的设计时,3XN建筑事务所的首席建筑师及创意总监Kim Herforth Nielsen说非常乐于挑战这个项目。

“这是3XN成立25年以来所接受最大的也是最著名的项目。该博物馆的设计是一系列非常细致的过程,包括聆听该市居民的声音(这也是最重要的)、研究利物浦的历史和了解博物馆所在的有历史意义场地的发展潜力。” Kim Herforth Nielsen说。

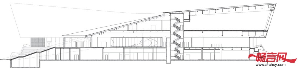
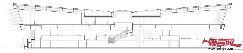
最终的建筑成品则是一个非常具有活力的低层建筑,它与海滨人行路边上的历史建筑相互呼应,这样不仅与这里的建筑融合,也使博物馆成为这里一个现代又极具活力的城市建筑。博物馆的设计仿若是在利物浦盛极一时的商船的再现,而幕墙上的浮雕样式则是对“美惠三女神”细节设计的重新演绎。巨大的山形墙窗户分别朝向城市和港口方向,这样便象征性的将历史带入到博物馆里,同时也让对博物馆好奇的人可以透过窗户看到博物馆里。

连接纽带
利物浦博物馆濒临穿越利物浦市中心的莫西河,它将作为一条联系纽带 --- 连接港口人行路和艾伯特码头,艾伯特码头区域现在有餐馆、博物馆和精品店。博物馆周围有一些座椅,从这里能看到水上景色,这不但使这里更有活力,也让这里成为市民和游客的聚集点。

这一主题还通过博物馆的中庭表现出来 --- 中庭里的大型雕刻螺旋梯一直延伸到上面的画廊,这更促进了人们交流。所有的这些功能都体现了建筑师Kim Herforth Nielsen将此博物馆定义为一个与利物浦的城市特点相互融合的一个建筑这一出发点。

“这座博物馆无论从地理上、环境上和建筑上都与利物浦市连接起来。将博物馆设计为一个连接纽带从一开始就是我们设计这个项目的核心理念。如今,我非常高兴的看到我们的理想变成现实。”

利物浦的又一座亮眼新建筑
利物浦博物馆馆长、也是获得英帝国勋章的军官David Fleming博士说他对3XN的设计非常满意,而且非常期待游客们观看博物馆的景象:“3XN建筑事务所的设计满足了我们的所有的要求。建成的博物馆是利物浦都市风景中的又一个亮点。我已经迫不及待的想打开馆们来欢迎游客来此,并向他们展示我们的博物馆了。我们也希望有更多的人来开发这个非凡的城市。”






|