在线投稿 设为首页  
     
    首页 >  案例 > 国际视野 > 建筑  > 正文
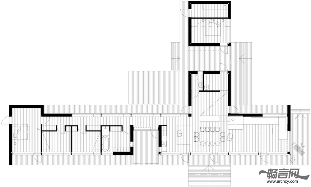
瑞典:斯德哥尔摩Plus别墅
发布时间: 2011-12-01   来源:匿名网友投稿 

这个仿若只能在画里看到的海边松木别墅位于斯德哥尔摩市,它的屋顶上有一个大块玻璃窗观景阁楼。

Plus别墅由瑞典Waldemarson Berglund建筑事务所设计,共有两层,它的幕墙完全由松木做成,松木只是简单的锯开之后就使用了,而且会随着时间的推移变成灰色。

二层的阁楼只有一个房间,卧室、浴室和大起居室都位于有一面玻璃墙的一楼。

在别墅的后面还有一个单独的卧室,只能穿过外面的一个木质甲板才能到达这里。

住宅还有很多只“脚”,它们将房子和木板平台抬高,这样就能避免涨潮时海水冲到这里。


 

责任编辑: Bright
评论
昵称: 
RCC关系网

都市实践

CCDI

五合国际

筑博设计

易兰

维思平

 
关于我们 | 联系方式 | 免责声明 | 广告服务 | 给我留言 | 在线投稿
建筑畅言网版权所有
京ICP备11034636号 京ICP证090740号 京公网安备110102003037号
E-mail: editor@archcy.com 电话:86 10 56064666 传真:86 10 63107850
畅言网微信