|
.jpg)
以下文章由Peter Ruge建筑事务所提供英文原版资料:
客户:索菲亚市政府,建筑及城市开发服务局
竞标小组:Peter Ruge建筑事务所,Peter Ruge, Kayoko Uchiyama, Matthias Matschewski, Alison McNicol, Hyesook Ahn, Duan Fu
项目位置:保加利亚,索菲亚市
项目概要:建造地铁一号线第20车站(Station 20),包括公共空间和景观的设计
服务范围:公开的国际竞标
规模:占地面积12,390平方米,建筑面积2,430
.jpg)
项目名称:索菲亚地铁1号线第20站
项目时间:2011年竞标
项目面积:2,430平方米
位置:
第20站的地理位置十分优越,它是连接索菲亚市中心和机场地铁线路上的一站,也是大型商业再开发计划的枢纽地点。它致力于建立几条清晰的路径,灵活的将各个地点连接起来,并达到建筑和景观之间的相融共生。
.jpg)
场地设计:
建筑线形的结构是根据附近高密度的Druzhba住宅小区楼房的样式和大小来设计的。景观的角度方向反映出了场地界限的自然结构,这样形成了一种视觉上的语言,指明了各个公共区域的分区,也建造出了几条路线,指引行人进入或走出地铁站。
建筑设计:
从一个大的角落广场可以进入第20地铁站地下大厅,这里可以进行公交和地铁的换乘。地铁站入口大厅的屋顶从地面像波浪一样向上延伸,将建筑平地拔起,将广场引入地铁大厅。高级浇筑的钢元素和不易燃的帆布里衬向下延伸,形成了一个优雅的结构和温暖的室内环境,隐蔽的和外露的灯光共同形成了这种温暖的效果。
.jpg)
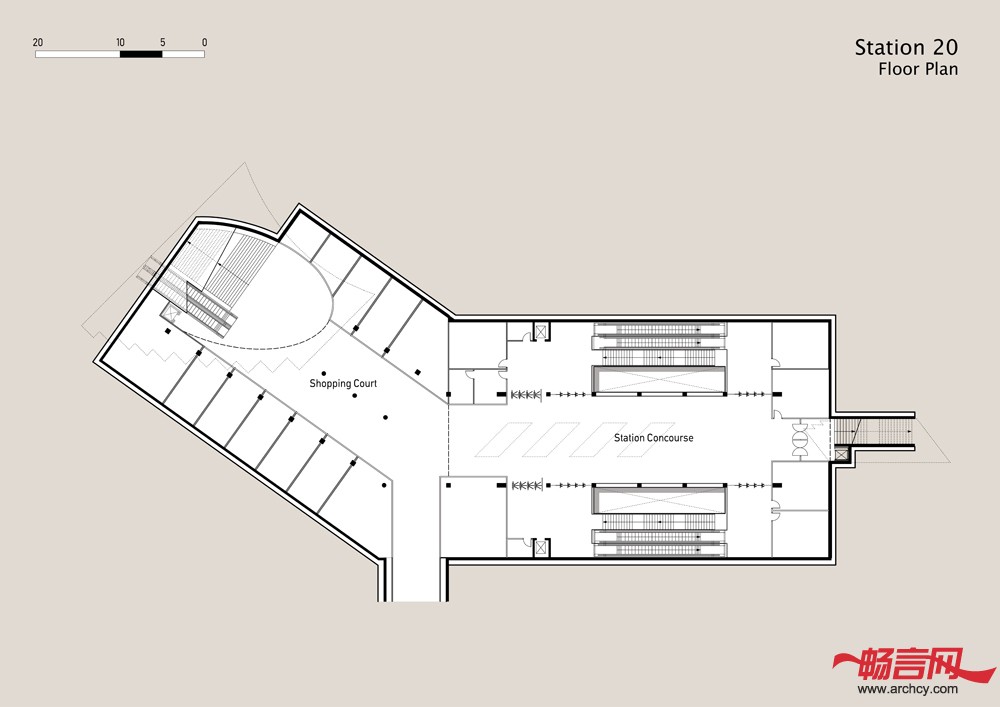
地下大厅:
该地铁站每天有12万的客流量,所以地下大厅进行了扩建,以保证最大的日预期客流量通过,而且要通过乘客管理体系减少站内交通堵塞。各个入口到大厅的视觉联系也得到了优化,这提升了乘客的安全、保证了站内的安全性、也让自然光线达到最好。
大厅里还有一个购物中心,这里的客流量比较大,所以有很好的商业机会。另外,大厅里还留出了未来建造地道的空间,这样以后第20站就能与规划中的购物中心连接起来了。
.jpg)
.jpg)
.jpg)
|