|

Topoject别墅由韩国AND建筑事务所设计,它距首尔市很近。别墅的特别之处在于,它是从水平面之下一直向上蜿蜒形成的建筑。

Topoject别墅共有两层,而成的外墙由雪松木板做成,并喷上了黑色的漆。雪松木板的面积在住宅带有玻璃窗的西侧延伸出一部分,这样就给住宅添加了一个有遮篷的阳台。

在这个阳台下面的地面上有一个露台,它的下面就是花园里的游泳池,阳台为它提供了很好的遮荫。

别墅的周围由草坪围绕,草坪不只在地面上,甚至它已经蔓延至屋顶。而在屋顶还有一个隐藏的、周围有墙的花园。

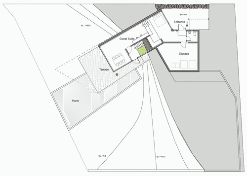
别墅的二楼有起居室、卧室、书房和温室,而位于一楼的客房套间和储藏室则与周围的景物融在一起。




|