|

(图片来源:建筑中国网)
建筑师:Eskew+Dumez+Ripple
地点:新奥尔良,路易斯安那州,美国
承包商:Satterfield & Pontikes Construction Group, LLC
记录建筑师:Eskew+Dumez+Ripple
合作规划建筑师:SHW Group
结构和土木工程:Shrenk & Peterson Consulting Engineers, Inc.
岩土工程:Eustis Engineering Company
机电暖通工程:Moses Engineers
景观设计师:Daly Sublette Landscape Architects, Inc.
餐饮服务顾问:Futch Design Associates
视听设计:Gracenote Consulting
客户:Louisiana Recovery School District
项目面积:236000平方英尺
项目年份:2010
摄影:Timothy Hursley


(图片来源:建筑中国网)
L.B.兰德里中学是后卡特里娜建筑项目的一部分,后卡特里娜建筑项目要在非常苛刻的时限内重建无所破损的学校。


(图片来源:建筑中国网)
L.B.兰德里中学在城市历史上占有一个重要的位置,这也是需要加速重建它的原因之一。该校建于1938年,是该市西岸的第一所公共中学,非裔美国人可以入读的学校,那时候在奥尔良区只有两所黑人中学。


(图片来源:建筑中国网)
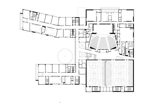
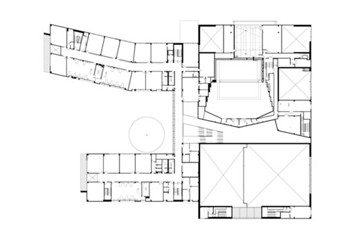
这座236000平方英尺的建筑可容纳900名学生读书,其中还包括1000座的体育馆、250座的辅助体育馆和650座的礼堂。额外的表演艺术空间包括教室和排练室,可进行跳舞、唱诗、乐队和艺术活动。


(图片来源:建筑中国网)
在两个教室翼部内,每个年级都有“学术室”。两个翼部的布局又形成了一个中央庭院,供学生们户外集合,庭院中有一颗木兰树。建筑项目还包括媒体中心、图书馆和校医院,这些项目也对外开放。


(图片来源:建筑中国网)
学校建筑采用了大量的可持续性设计,还获得了LEED学校类银质认证。
|